EasyManua.ls Logo

York MILLENNIUM YCAR0315 - Isolator Dimensions

York MILLENNIUM YCAR0315
160 pages
Print Icon
To Next Page IconTo Next Page
To Next Page IconTo Next Page
To Previous Page IconTo Previous Page
To Previous Page IconTo Previous Page
Loading...
91
YORK INTERNATIONAL
FORM 150.52-NM2 (1001)
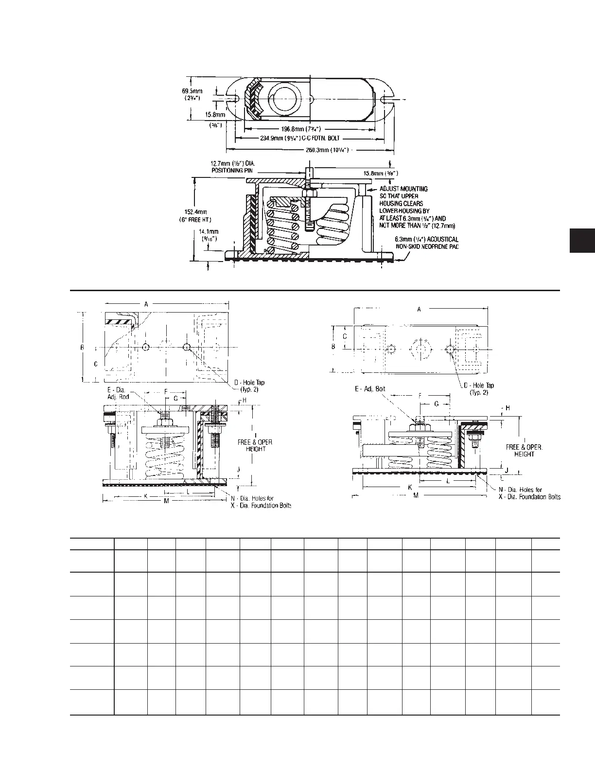
ISOLATOR DIMENSIONS
FIG. 33 – AWMR DIMENSIONS (INCHES)
LD07259
CP-2-XX DIMENSIONS
LD02973
AWMR-1-XXX
LD02974
AWMR-2-XXX
ABCDEFGHI JKLMN/X
AWMR-1
96 3
1/2
5/8 2 1 3/8 6 1/2 7 3-1/2 9
3/4
92-99 13NC 5/8
AWMR-1
10-1/2 6 3
5/8
3/4 3-1/2 1-3/4 1/2 7 5/8 8-1/2 4-1/4 10-1/2
3/4
1000-1628 11NC 5/8
AWMR-2
17 6 3
3/4
1 7-1/2 3-3/4 1/2 7-1/2 5/8 14-1/2 7-1/4 17
7/8
1000-1628 10NC 3/4
AWMR-4
17 8 4
7/8
1-1/4 7-1/2 3-3/4 3/4 7-3/4 3/4 14-1/2 7-1/4 17
7/8
1000-1628 9NC 7/8
AWMR-1
10-1/2 6 3
5/8
3/4 3-1/2 1-3/4 1/2 9 5/8 8-1/2 4-1/4 10-1/2
3/4
50-553 11NC 5/8
AWMR-2
15 6 3
3/4
1 7-1/2 3-3/4 1/2 9-1/2 5/8 14-1/2 7-1/4 17
3/4
50-553 10NC 5/8
AWMR-4
17 8 4
7/8
1-1/4 7-1/2 3-3/4 3/4 9-3/4 3/4 14-1/2 7-1/4 17
1
52-553 9NC 7/8
7

Table of Contents

Related product manuals