EasyManua.ls Logo

ABB REG650 - Technical Data

ABB REG650
728 pages
Print Icon
To Next Page IconTo Next Page
To Next Page IconTo Next Page
To Previous Page IconTo Previous Page
To Previous Page IconTo Previous Page
Loading...
u
1
x
2
x
1
u
1
x
2
x
1
ADx
Controller
ADx_High
ADx_Low
ADx
IEC05000296-3-en.vsd
IEC05000296 V3 EN
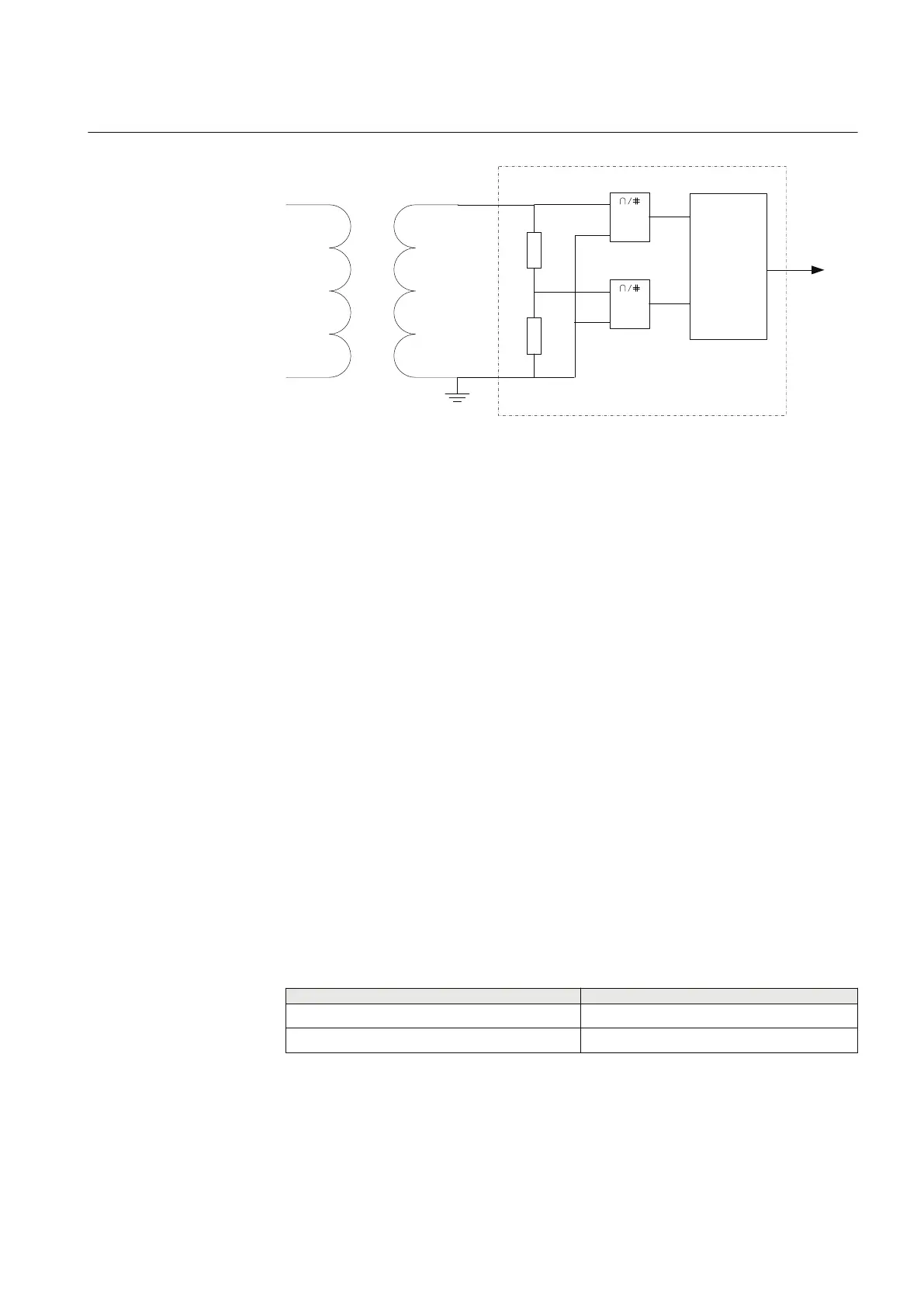
Figure 299: Simplified drawing of A/D converter for the IED.
The technique to split the analog input signal into two A/D converter(s) with different
amplification makes it possible to supervise the A/D converters under normal
conditions where the signals from the two A/D converters should be identical. An
alarm is given if the signals are out of the boundaries. Another benefit is that it
improves the dynamic performance of the A/D conversion.
The self-supervision of the A/D conversion is controlled by the ADx_Controller
function. One of the tasks for the controller is to perform a validation of the input
signals. The ADx_Controller function is included in all IEDs equipped with an analog
input module. This is done in a validation filter which has mainly two objects: First is
the validation part that checks that the A/D conversion seems to work as expected.
Secondly, the filter chooses which of the two signals that shall be sent to the CPU, that
is the signal that has the most suitable signal level, the ADx_LO or the 16 times higher
ADx_HI.
When the signal is within measurable limits on both channels, a direct comparison of
the two A/D converter channels can be performed. If the validation fails, the CPU will
be informed and an alarm will be given for A/D converter failure.
The ADx_Controller also supervise other parts of the A/D converter.
17.1.5 Technical data
Table 491: Self supervision with internal event list
Data
Value
Recording manner Continuous, event controlled
List size 40 events, first in-first out
1MRK 502 048-UEN A Section 17
Basic IED functions
621
Technical manual

Table of Contents

Other manuals for ABB REG650

Related product manuals