EasyManua.ls Logo

AERMEC SAF - Wiring Diagrams

AERMEC SAF
40 pages
Print Icon
To Next Page IconTo Next Page
To Next Page IconTo Next Page
To Previous Page IconTo Previous Page
To Previous Page IconTo Previous Page
Loading...
SAF_5523451_09
35
WIRING DIAGRAMS
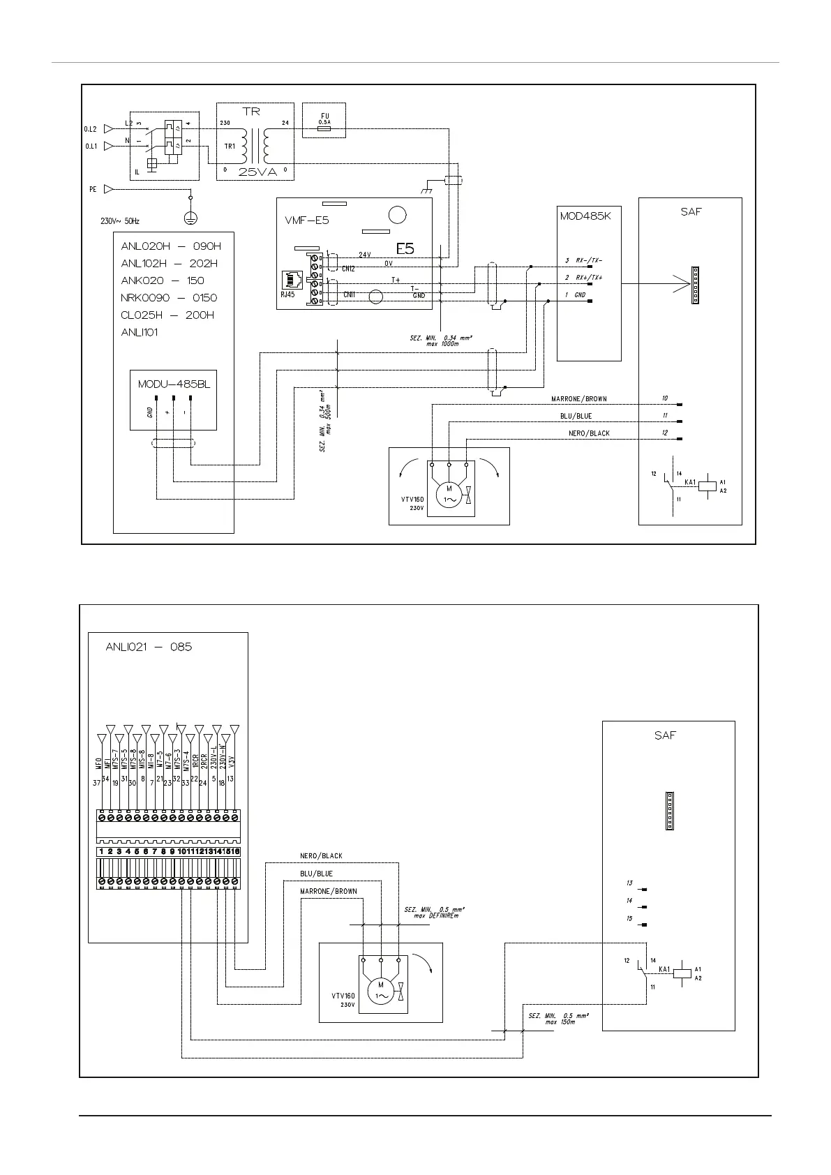
SAF - CHILLER + VMF-E5
BEVILACQUA (VERONA) ITALY
AERMEC S.P.A.
SAF-Pompa di calore
4713100_01
ELECTRICAL WIRING FOR OPERATING SYSTEM
COLLEGAMENTI ELETTRICI PER GESTIONE IMPIANTO
J6
morsetti/clamps
Serial Card controller
SAF-ANLI
BEVILACQUA (VERONA) ITALY
AERMEC S.P.A.
SAF-Pompa di calore
4713100_01
ELECTRICAL WIRING FOR OPERATING SYSTEM
J6
COLLEGAMENTI ELETTRICI PER GESTIONE IMPIANTO
morsetti/clamps
Serial Card controller

Table of Contents

Related product manuals