EasyManua.ls Logo

AGI HI ROLLER - Page 87

Default Icon
134 pages
Print Icon
To Next Page IconTo Next Page
To Next Page IconTo Next Page
To Previous Page IconTo Previous Page
To Previous Page IconTo Previous Page
Loading...
HI ROLLER - BELT CONVEYORS 7. MAINTENANCE
HI ROLLER, MINI ROLLER, LO ROLLER & HI LIFE 7.2. BELT TRACKING GUIDE
P115506 R3 87
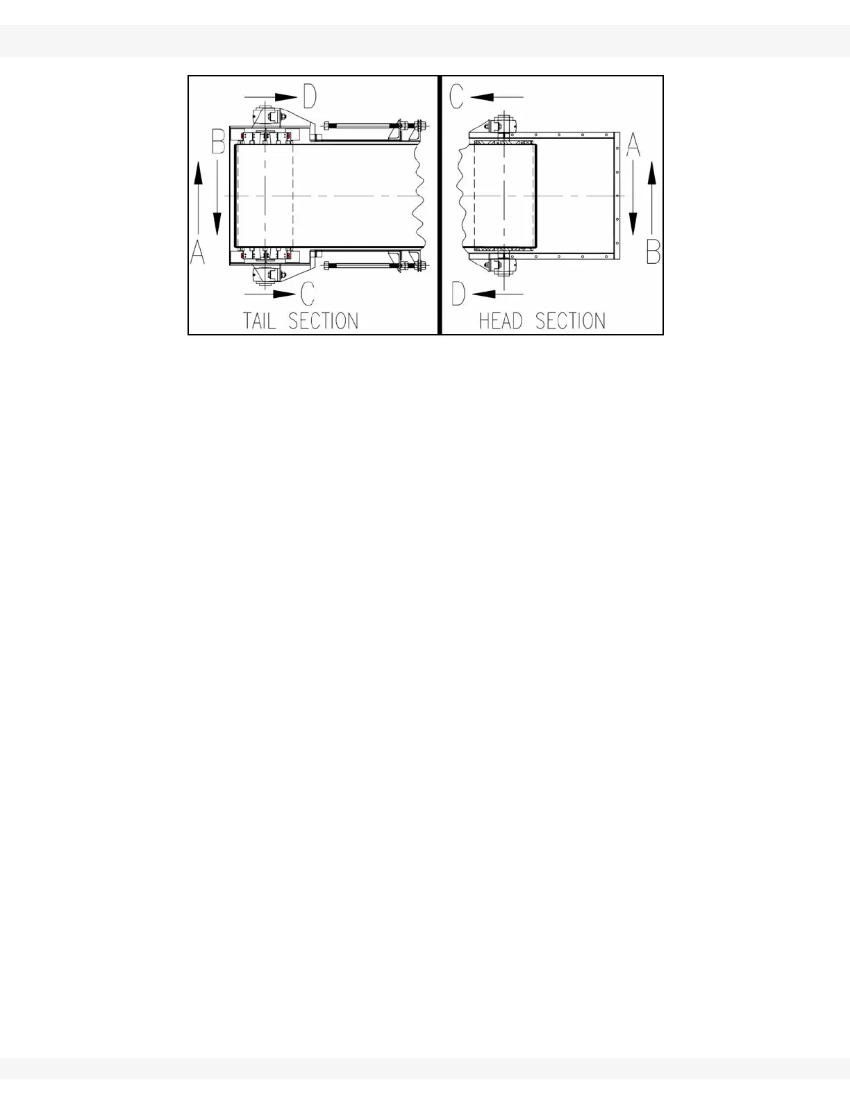
Figure 7.2
3. If the belt will not train after all of these procedures, thoroughly check that the
trunking, tripper, head and tail sections are square, level, and straight, and
that the belt splice is square, the belt is running of the flat part of the idler, and
that the load is centered. If nothing helps, contact Hi Roller Conveyors.
4. If the belt trains significantly different when loaded vs. empty, contact Hi
Roller.
IDLERS
Idlers may be adjusted only if attempts to train the belt with the head and tail
pulleys have failed. The conveyor must be square, level, in-line, belt splice must
be square, belt must be running on the flat part of the idler, and the load must be
centered on the belt. All of these must check out before attempting to train the
belt with the idlers.
1. Hi Roller and Mini Roller idler adjustments are completed by loosening the
two bearing retainer bolts. This should be done on the bearing that is easiest
to work on. These bolts hold the bearings in place and are located on both
sides of the conveyor as shown in Figure 7.3. The nuts on the inside of the
conveyor are welded to a nut clip so that they will not have to be held in order
to loosen the bearing bolts.
2. After loosening these bolts, the end of the idler can be shifted either forward
or backward.
3. Adjust 5 - 10 idlers in the middle of the conveyor. Adjust these idlers about 1/
4" to 3/8".
If the belt is too close to the side of the bearing being adjusted, move the
bearing toward the head section. If the belt is too close to the opposite
side, move the bearing toward the tail section.

Table of Contents

Related product manuals