EasyManua.ls Logo

Avaya 6424D+M - Page 46

Avaya 6424D+M
178 pages
Print Icon
To Next Page IconTo Next Page
To Next Page IconTo Next Page
To Previous Page IconTo Previous Page
To Previous Page IconTo Previous Page
Loading...
MDF/lDF DESIGN: SYSTEM 85 AND DEFINITY GENERIC 2 WITH TRADITIONAL MODULES
2-23
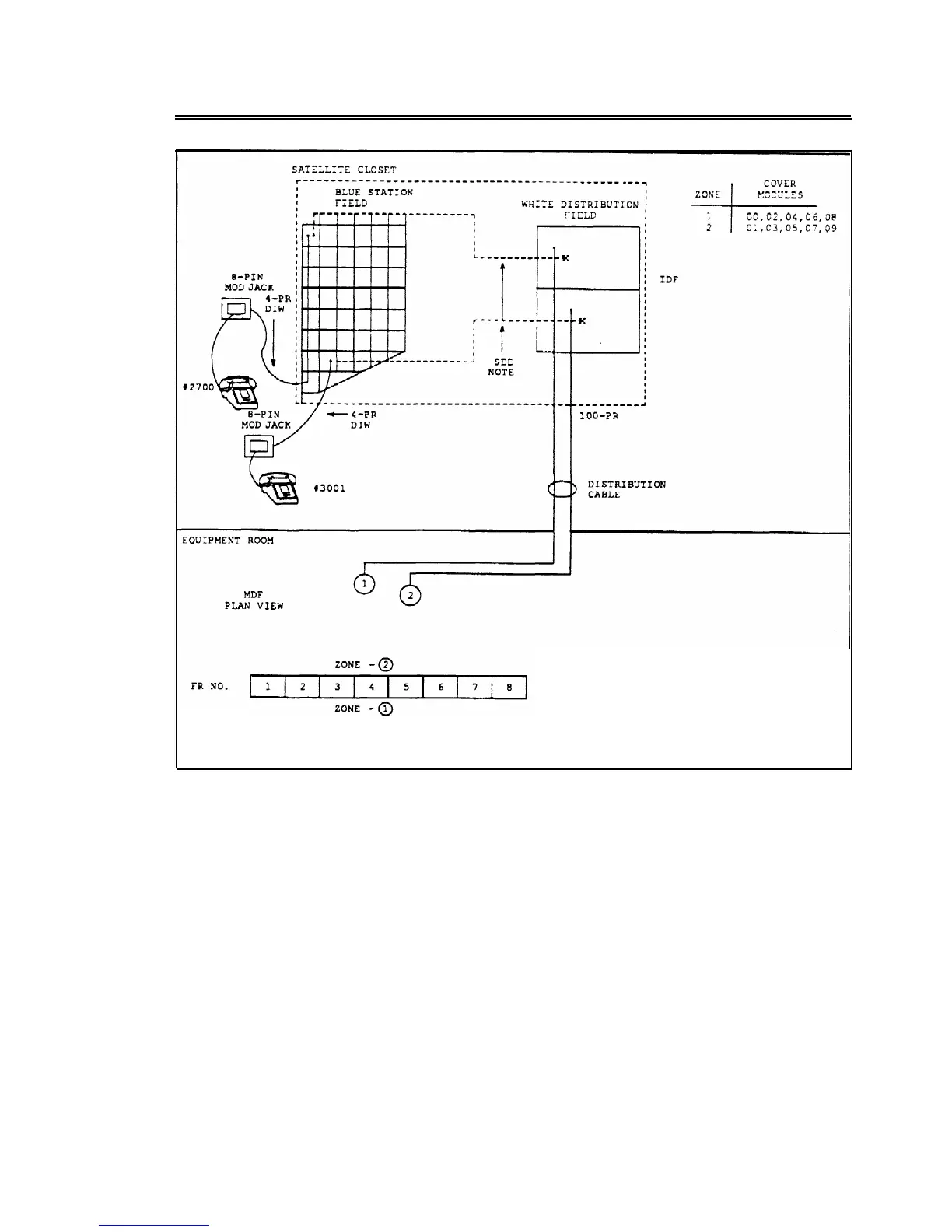
NOTE:
If station #2700 is located in module 04, the cross-connection in the closet goes to a pair in zone 1. Similarly, if #3001 is in module
07, the cross-connection in the closet goes to a pair in zone 2. Using this rule, it is possible to keep the jumpers short at the equipment room
cross-connect field.
Figure 2-13. Closet Cross-Connects Using Type- 1 Frames
Connecting to Terminal Blocks
The 110A and 110P cross-connect hardware are available with connectors or without connectors for field
termination of cables. The determination of whether to use cross-connect hardware with or without
connectors is best made at the site, but in general, the following guidelines apply:
Use cross-connect hardware without connectors for field terminations for distribution cables.
Use cross-connect hardware without connectors for field terminations for equipment cables for
systems over 10 modules.

Table of Contents

Other manuals for Avaya 6424D+M

Related product manuals