EasyManua.ls Logo

BendPak PL-6000DC - Multiple Lift Installations

BendPak PL-6000DC
96 pages
Print Icon
To Next Page IconTo Next Page
To Next Page IconTo Next Page
To Previous Page IconTo Previous Page
To Previous Page IconTo Previous Page
Loading...
PL-6000DC/DCX Two-Post Parking Lift 69 P/N 5900273Rev. A6 —July 2024
Multiple Lift Installations
Multiple Lifts may be installed side-by-side, sharing a Post. The first Lift requires the complete Lift with
two Posts and is designated Unit A (5175427). Additional Lifts are designated Unit B and only require
one additional Lift Post (5175439). By sharing a Post, the Lifts cover a smaller area, are structurally
stronger and reduce cost. Each lift requires its own Power Unit, electrical supply, and control. On
installations with multiple Lifts, the Platforms operate independently.
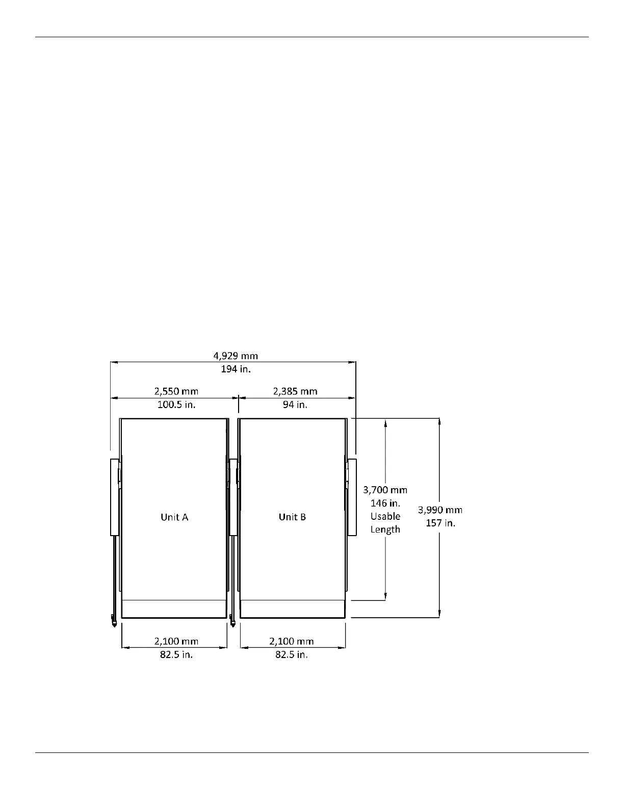
Space Requirements – PL-6000DC Multiple Lift Installations
Typical spacing required for two PL-6000DC Lifts sharing one Post as detailed below. Each Lift
requires its own Power Unit and Electrical supply.
Unit A: PL-6000DC (5175427) 6,000 lb. Capacity/Two-Post Parking Lift/Shared Columns with
Power Unit.
Unit B: PL-6000DC-Add-On (5175439) Shared Column Add-On Platform and Column Set with
Power Unit.
Refer to the figure below.
Top View PL-6000DC
Drawing not to scale.

Related product manuals