EasyManua.ls Logo

BendPak PL-6000DC - Install a Thermal Disconnect Switch

BendPak PL-6000DC
96 pages
Print Icon
To Next Page IconTo Next Page
To Next Page IconTo Next Page
To Previous Page IconTo Previous Page
To Previous Page IconTo Previous Page
Loading...
PL-6000DC/DCX Two-Post Parking Lift 51 P/N 5900273Rev. A6 —July 2024
Install a Thermal Disconnect Switch
The Power Unit supplied with this Lift does not include thermal overload protection. Under NEC 430,
UL 201, and CSA C22.2 No. 68 intermittent duty motors are not required to include thermal
protection. Local electrical codes may vary, and other requirements may exist that the installing
electrician will address, if required.
DANGER If local Electrical codes require the installation of a Thermal Disconnect, the
disconnecting device and the installation must be provided by a licensed
Electrician in accordance with local electrical codes. Do not perform any
maintenance or installation on the Lift without first verifying that main electrical
power has been disconnected from the Lift and cannot be re-energized until all
procedures are complete.
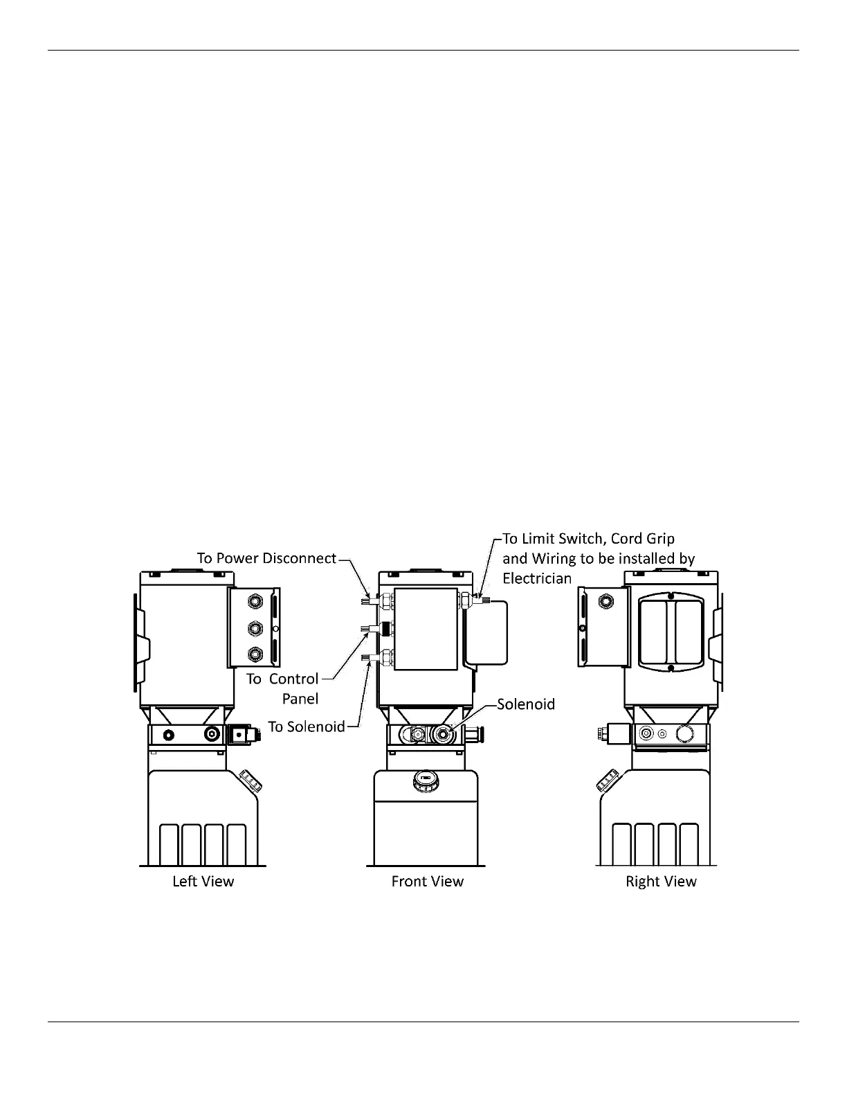
Install the Limit Switch Cord Grip and Wiring
Several different Hydraulic Power Units may be supplied with this Lift and there may be minor
variations in appearance. Using a conduit Knockout Punch create a hole in the Power unit’s Junction
Box in an area that will not interfere with the existing electrical or mechanical components. A
suggested location is pictured in the sketch below. Install the Thermal Disconnect in accordance with
local electrical codes and the manufacturer’s instructions.
Refer to the Wiring Diagram and Control Panel Wiring Diagram for further information.
NOTE: Several different power units may be supplied with your Lift based upon availability and may
not look exactly as pictured below.

Related product manuals