EasyManua.ls Logo

Bosch EPS 807 - Mål EPS 807;815

Bosch EPS 807
336 pages
Go to English
To Next Page IconTo Next Page
To Next Page IconTo Next Page
To Previous Page IconTo Previous Page
To Previous Page IconTo Previous Page
Loading...
1 689 979 672 2012-06-26| Robert Bosch GmbH
244 | EPS 807 / 815 | Tekniske datano
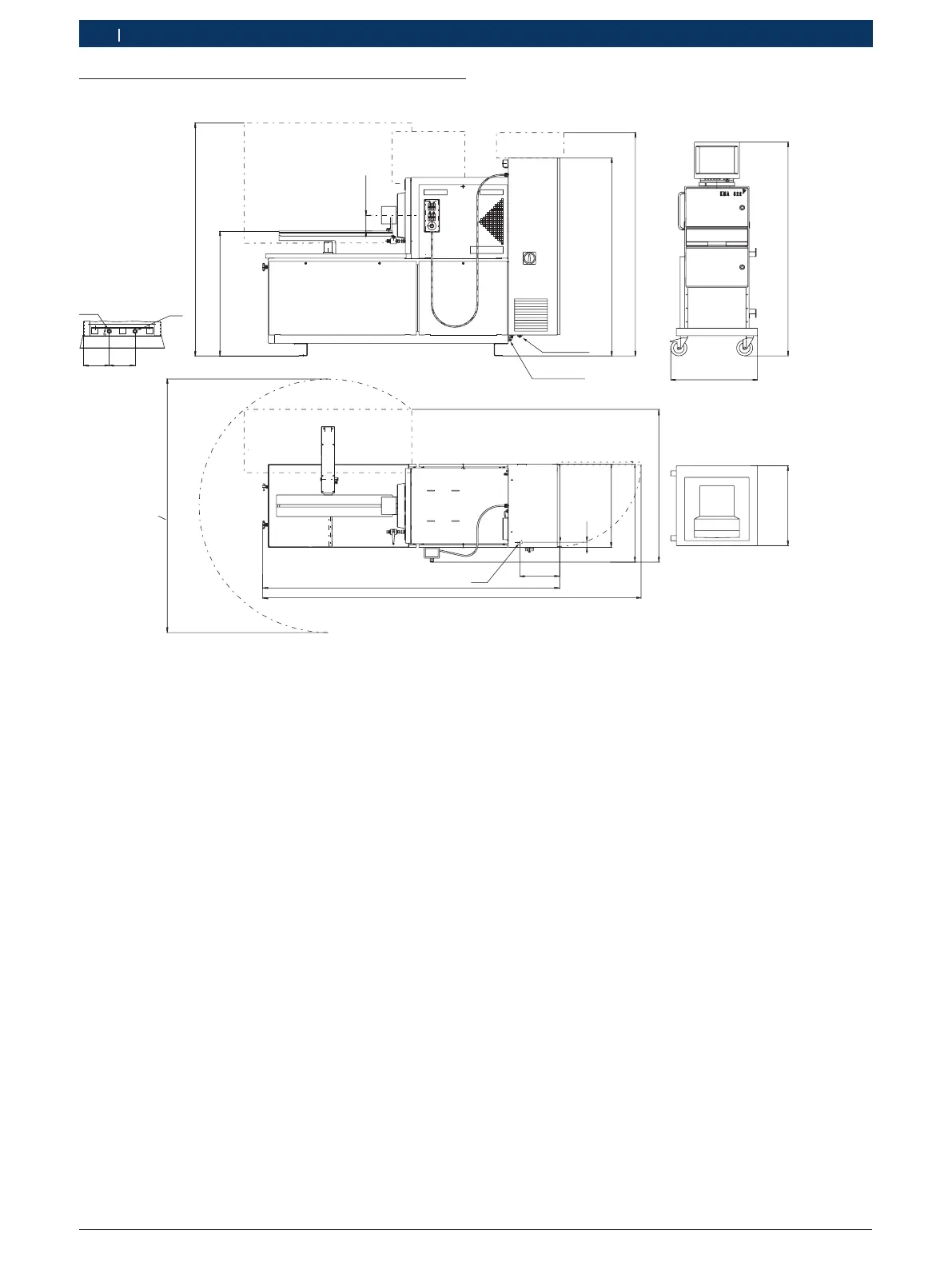
9.6 Mål EPS807/815
a
b
321
4
5
4
1690 mm
1765 mm
1565 mm
125 mm
200mm 200mm
max. 1840 mm
min. 1500 mm
987 mm
673 mm
40 mm
656 mm
773 mm
1207 mm
630 mm
2306 mm
2937 mm
310 mm
o 2003 mm
458753 R
1 Maks. rom for målecellebæreren ved KMA802/822 eller til
måleglassbæreren ved MGT 812/824.
2 Maks. rom fra monitor og tastatur ved KMA 802 eller slag-
og turteller ved MGT 812/824.
3 Maks. rom for PC-kapsling ved KMA802.
4 Strømtilkobling
5 Vanntilkobling (kjølevanntilkobling)
a) Tilførselskobling G½" A ISO 228-1
b) Returkobling G½" A ISO 228-1
! I kjølevanntilførselen må det monteres en trykkreduksjon
(stilt inn på 250 kPa), et beskyttelsesfilter og en stenge-
ventil.
! Kjølevanntemperaturen må være maks. 17 grader, ved
høyere kjølevanntemperatur må det være en tilsvarende
kjøleinnretning på anleggssiden.
! Kjølevannavløpet må uten hindring ledes inn
i spillvannledningen via en oljeutskiller.

Table of Contents

Other manuals for Bosch EPS 807

Related product manuals