EasyManua.ls Logo

Bosch EPS 807 - Installation Dimensions

Bosch EPS 807
336 pages
Go to English
To Next Page IconTo Next Page
To Next Page IconTo Next Page
To Previous Page IconTo Previous Page
To Previous Page IconTo Previous Page
Loading...
1 689 979 672 2012-06-26| Robert Bosch GmbH
46 | EPS 807 / 815 | Technical Dataen
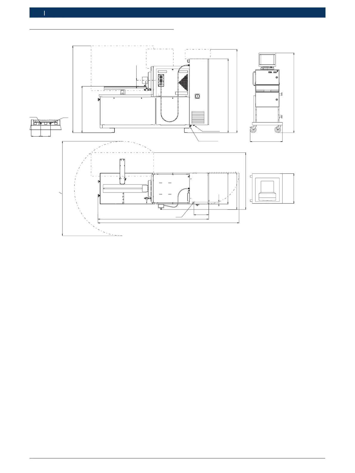
9.6 Dimensions EPS807/815
a
b
321
4
5
4
1690 mm
1765 mm
1565 mm
125 mm
200mm 200mm
max. 1840 mm
min. 1500 mm
987 mm
673 mm
40 mm
656 mm
773 mm
1207 mm
630 mm
2306 mm
2937 mm
310 mm
o 2003 mm
458753 R
1 Maximum installation space taken up by measuring cell carrier of
KMA802/822 or measuring-glas carier of MGT 812/824
2 Maximum installation space taken up by monitor and keyboard of
KMA802 or stroge and rev counters of MGT 812/824
3 Maximum installation space taken up by PC housing of KMA 802
4 Power connection
5 Water connection (Coolant connection)
a) Supply connection G½" A ISO 228- 1
b) Return-line connection G½" A ISO 228- 1
! The operator must provide a pressure reducer (set
to 250 kPa), a safety filter and a shut-off valve in the
coolant supply.
! The coolant temperature must not exceed 17 de-
grees. If the coolant temperature is higher than this,
the operator must provide a suitable cooling device.
! The coolant must be discharged via an oil separator into
the waste water lead. No shut-off valves must be used.

Table of Contents

Other manuals for Bosch EPS 807

Related product manuals