EasyManua.ls Logo

Bosch EPS 807 - Rozměry EPS 807;815

Bosch EPS 807
336 pages
Go to English
To Next Page IconTo Next Page
To Next Page IconTo Next Page
To Previous Page IconTo Previous Page
To Previous Page IconTo Previous Page
Loading...
1 689 979 672 2012-06-26| Robert Bosch GmbH
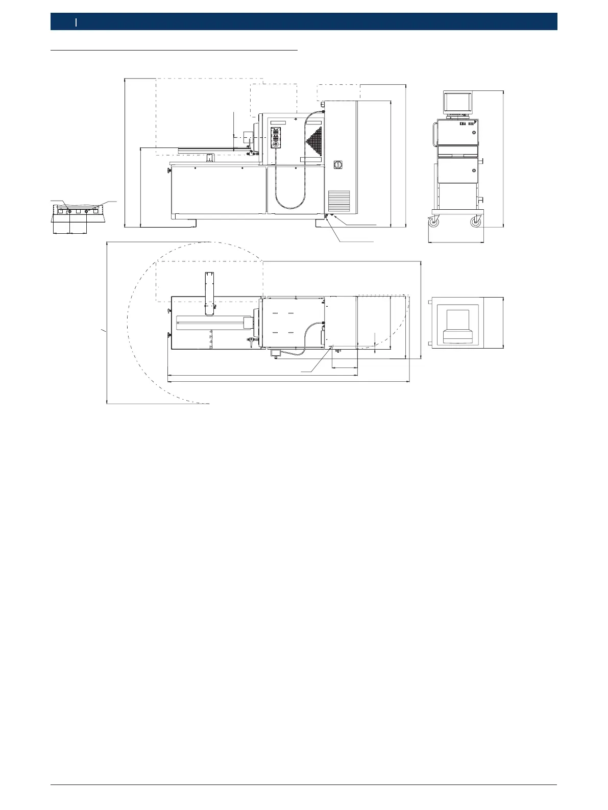
288 | EPS 807 / 815 | Technické údajecs
9.6 Rozměry EPS807/815
a
b
321
4
5
4
1690 mm
1765 mm
1565 mm
125 mm
200mm 200mm
max. 1840 mm
min. 1500 mm
987 mm
673 mm
40 mm
656 mm
773 mm
1207 mm
630 mm
2306 mm
2937 mm
310 mm
o 2003 mm
458753 R
1 Maximální konstrukční prostor nosiče měrných článků u
KMA802/822 nebo nosiče měrných článků u MGT 812/824.
2 Maximální konstrukční prostor monitoru a klávesnice u KMA 802
nebo počítadla zdvihů a otáček u MGT 812/824.
3 Maximální konstrukční prostor pro pouzdro PC u KMA802.
4 Síťová přípojka
5 Vodní přípojka (přípojka chladicí vody)
a) Přípojka přívodu G½" A ISO 228-1
b) Přípojka zpětného vedení G½" A ISO 228-1
! V přívodu chladicí vody musí provozovatel zajis-
tit instalaci redukčního ventilu (nastaveného na
250kPa), ochranného filtru a uzavíracího ventilu.
! Teplota chladicí vody smí dosahovat max. 17 stup-
ňů, při vyšší teplotě chladicí vody musí provozovatel
zajistit instalaci příslušného chladicího zařízení.
! Odtok chladicí vody musí být do kanalizačního potru-
bí veden bez možnosti uzavření přes odlučovač oleje.

Table of Contents

Other manuals for Bosch EPS 807

Related product manuals