EasyManua.ls Logo

Bosch EPS 807 - Ölçüler EPS 807;815

Bosch EPS 807
336 pages
Go to English
To Next Page IconTo Next Page
To Next Page IconTo Next Page
To Previous Page IconTo Previous Page
To Previous Page IconTo Previous Page
Loading...
1 689 979 672 2012-06-26| Robert Bosch GmbH
�10 | EPS 807 / 815 | Teknik Verilertr
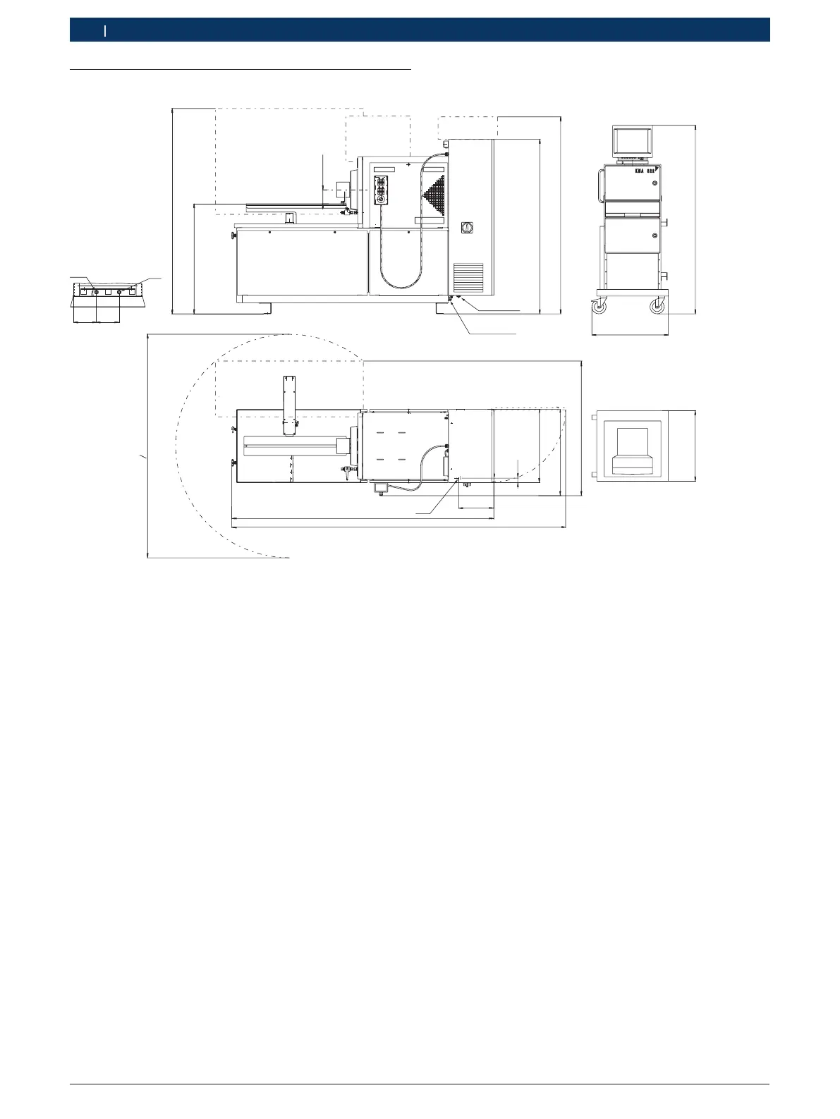
9.6 Ölçüler EPS807/815
a
b
321
4
5
4
1690 mm
1765 mm
1565 mm
125 mm
200mm 200mm
max. 1840 mm
min. 1500 mm
987 mm
673 mm
40 mm
656 mm
773 mm
1207 mm
630 mm
2306 mm
2937 mm
310 mm
o 2003 mm
458753 R
1 KMA802/822 ünitesinde ölçüm hücresi taşıyıcısının veya
MGT 812/824 ünitesinde ölçü şişesi taşıyıcısının maksimum
yapısal alanı.
2 KMA 802 ünitesinde monitör ve klavyenin veya MGT 812/824
ünitesinde strok ve devir sayacının maksimum yapısal alanı.
3 KMA802 ünitesinde bilgisayar gövdesi için maksimum yapısal
alan.
4 Şebeke bağlantısı
5 Su bağlantısı (soğutma suyu bağlantısı)
a) Giriş bağlantısı G½" A ISO 228-1
b) Geri dönüş bağlantısı G½" A ISO 228-1
! Soğutma suyu girişinde bina tarafında bir basınç
düşürücüsü (250 kPa değerine ayarlı olmalıdır), bir
koruyucu filtre ve bir kapama valfi öngörülmek zorun-
dadır.
! Soğutma suyu sıcaklığı azami 17°C olmalıdır. Soğut-
ma suyu sıcaklığı bu değeri aşıyorsa bina tarafında
buna uygun bir soğutma düzeneği öngörülmelidir.
! Soğutma suyu tahliyesi, kesme düzeneği olmadan,
bir yağ separatörü üzerinden atık su hattına gerçek-
leştirilmelidir.

Table of Contents

Other manuals for Bosch EPS 807

Related product manuals