EasyManua.ls Logo

Bosch EPS 807 - Wymiary Urządzenia EPS 807;815

Bosch EPS 807
336 pages
Go to English
To Next Page IconTo Next Page
To Next Page IconTo Next Page
To Previous Page IconTo Previous Page
To Previous Page IconTo Previous Page
Loading...
1 689 979 672 2012-06-26| Robert Bosch GmbH
266 | EPS 807 / 815 | Dane technicznepl
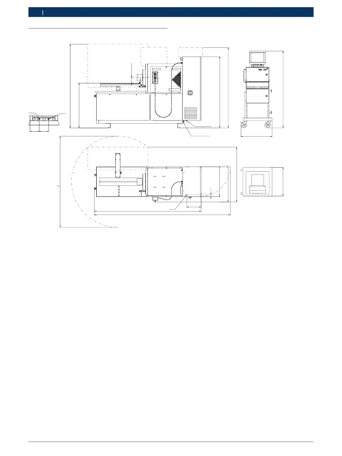
9.6 Wymiary urządzenia EPS807/815
a
b
321
4
5
4
1690 mm
1765 mm
1565 mm
125 mm
200mm 200mm
max. 1840 mm
min. 1500 mm
987 mm
673 mm
40 mm
656 mm
773 mm
1207 mm
630 mm
2306 mm
2937 mm
310 mm
o 2003 mm
458753 R
1 maksymalna przestrzeń konstrukcyjna wspornika ogniwa pomia-
rowego w przypadku systemu KMA802/822 albo
uchwytu szklanego naczynia pomiarowego w przypadku systemu
MGT 812/824.
2 maksymalna przestrzeń konstrukcyjna monitora i klawiatury
w przypadku systemu KMA 802 albo licznika skoków i prędkości
obrotowej w przypadku systemu MGT 812/824.
3 maksymalna przestrzeń konstrukcyjna dla obudowy komputera
w przypadku systemu KMA802.
4 przyłącze sieciowe
5 przyłącze wody (przyłącze wody chłodzącej)
a) przyłącze dopływowe G½" A ISO 228-1
b) przyłącze powrotne G½" A ISO 228-1
! W dopływie wody chłodzącej użytkownik musi
zapewnić reduktor ciśnienia (ustawiony na 250 kPa),
filtr ochronny i zawór odcinający.
! Temperatura wody chłodzącej może wynosić
maks. 17 stopni, przy wyższej temperaturze wody
chłodzącej użytkownik musi zapewnić odpowiedni
układ chłodzenia.
! Odpływ wody chłodzącej musi prowadzić, bez
możliwości odcięcia, przez separator oleju do
przewodu ściekowego.

Table of Contents

Other manuals for Bosch EPS 807

Related product manuals