EasyManua.ls Logo

Broaster 1800 - Power Input Box Components

Broaster 1800
131 pages
Print Icon
To Next Page IconTo Next Page
To Next Page IconTo Next Page
To Previous Page IconTo Previous Page
To Previous Page IconTo Previous Page
Loading...
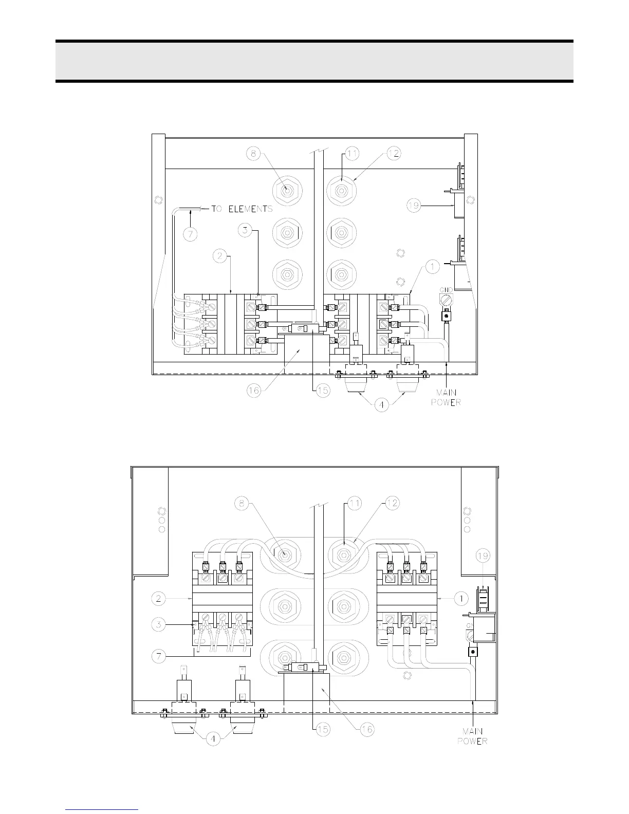
5 - POWER INPUT BOX
5-1
1600 Pressure Fryer:
1800E Pressure Fryer:
broaster.com Manual #14680 3/99 Rev 5/14

Table of Contents

Other manuals for Broaster 1800

Related product manuals