EasyManua.ls Logo

Brother HL-5340D

Brother HL-5340D
319 pages
To Next Page IconTo Next Page
To Next Page IconTo Next Page
To Previous Page IconTo Previous Page
To Previous Page IconTo Previous Page
Loading...
1-12
Confidential
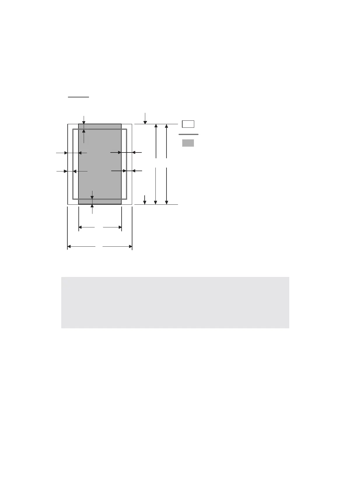
2.7 Printable Area
! PCL emulation
When using PCL emulation, the edges of the paper that cannot be printed on are shown
below.
Note :
"Logical page" shows the printable area for a PCL driver.
"Printable area" shows mechanical printable area of the machine.
Therefore, the machine can only print within the shaded area when you use a PCL
driver.
Portrait
A
B
C
D
E
F
G
F
G
E
G
G
Physical page
Printable area
Logical page
B Physical page length
D
Maximum logical page length
F
Distance from edge of physical page to
edge of logical page

Table of Contents

Other manuals for Brother HL-5340D

Related product manuals