EasyManua.ls Logo

CAME OPB001CB - Page 105

CAME OPB001CB
Print Icon
To Next Page IconTo Next Page
To Next Page IconTo Next Page
To Previous Page IconTo Previous Page
To Previous Page IconTo Previous Page
Loading...
A
B
120 min
C max
27,5
150 min
(°)
310 max
330
322
Стр. 9 - Руководство FA01054-RU - 01/2018 - © CAME S.p.A. -
Перевод оригинальных инструкций
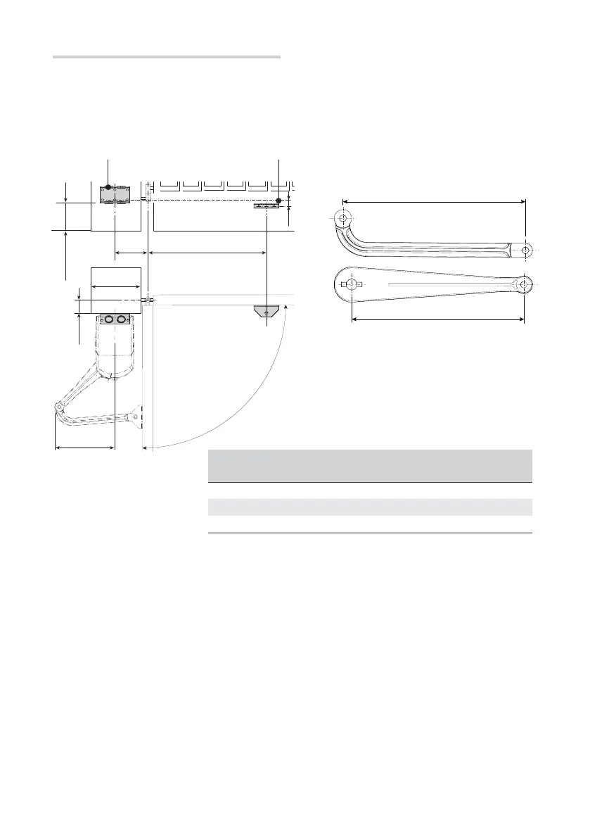
Угол открывания створки
(°)
A B С макс.
90
140 420 150
90
160 — 180 380 150
110
200 — 220 400 50
ЗАДНИЙ КРОНШТЕЙН ПЕРЕДНИЙ КРОНШТЕЙН
Проверка установочных расстояний и размеров
Определите место крепления переднего кронштейна и рассчитайте место крепления заднего кронштейна, со-
блюдая расстояния, указанные на рисунке и в таблице.

Related product manuals