EasyManua.ls Logo

Carrier C708 - Specifications

Carrier C708
148 pages
Print Icon
To Next Page IconTo Next Page
To Next Page IconTo Next Page
To Previous Page IconTo Previous Page
To Previous Page IconTo Previous Page
Loading...
4
Introduction
Models C708/C709/C716/C717
Model C708 Specifications
Freezing Cylinder
One, 3.4 quart (3.2 liter)
Mix Hopper
One, 20 quart (18.9 liter)
Beater Motor
One, 1.5 hp
Refrigeration Unit
One, approximately 9,500 btu/hr compressor.
Refrigerant R404A.
Electrical
One dedicated connection.
Electrical
Maximum
Fuse Size
Minimum
Circuit Ampacity
208-230/60/1 Air 30 23
208-230/60/3 Air 25 18
220-240/50/1 Air 25 21
220-240/380 -415/50/3 Air 12 9
This unit may be manufactured in other electrical
characteristics. Refer to the local Taylor Distributor
for availability. (For exact electrical information,
always refer to the data label of the unit.)
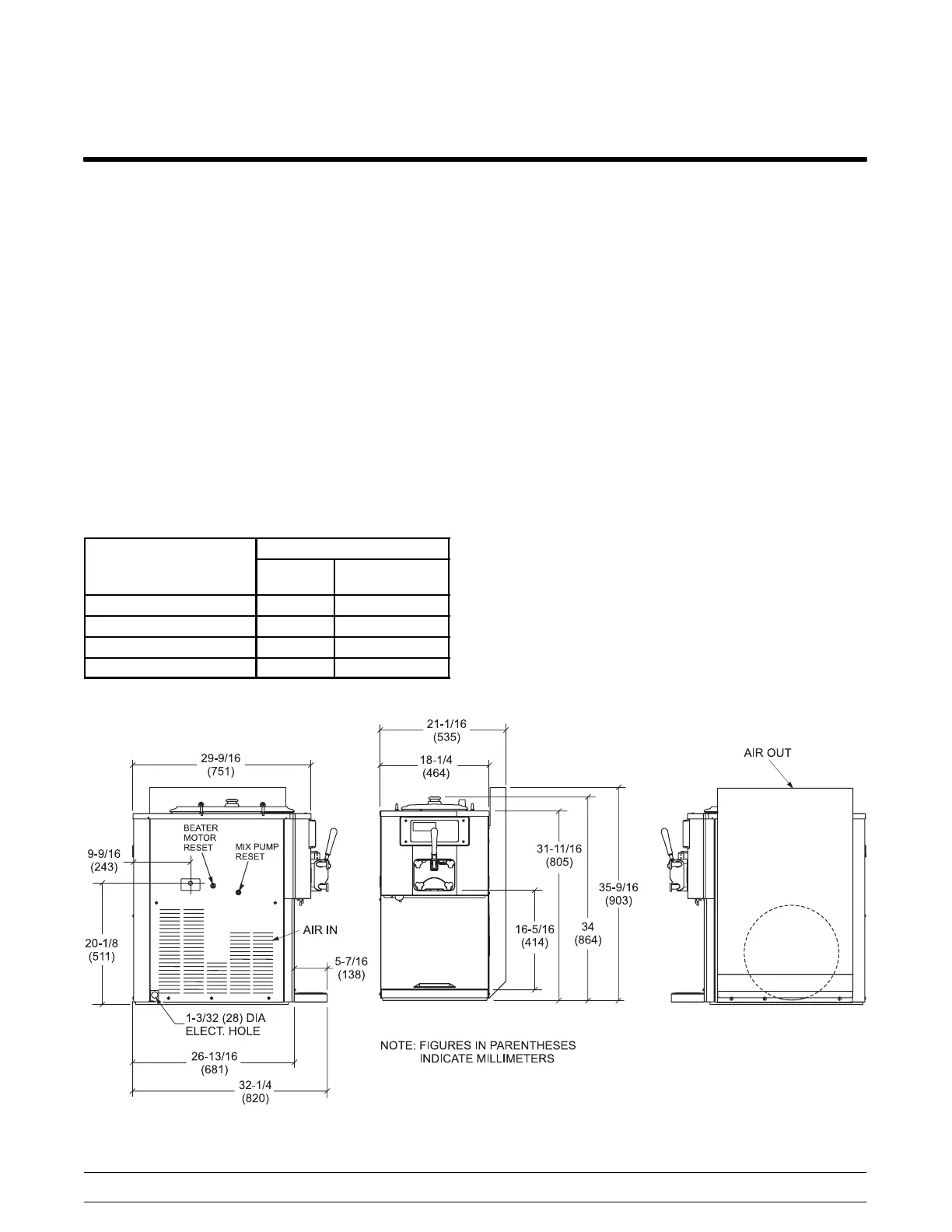
Air Cooled
Clearance: A minimum of 6” (152 mm) is required on
both sides, and the back of the unit placed against
the wall to prevent recirculation of warm air. An
optional air discharge chute is available to direct
heated air exhaust upward. No clearance is required
on the right side if the air discharge chute is used.
Water Cooled
Water inlet and drain connections on the right side
or under the side of the base, 3/8” FPT.
Dimensions
Width: 18-1/4” (464 mm)
Height: 33-7/8” (860 mm)
Depth: 34” (864 mm)
Floor Clearance: Rests on a plastic pad directly on
counter top.
Approximate Weights
Net: 369 lbs. (167.4 kgs)
Crated: 470 lbs. (213.2 kgs)
Volume:30.6cu.ft.(0.86cum)
Note: Shown with optional air discharge chute.
Figure 1

Table of Contents

Related product manuals