EasyManua.ls Logo

Carrier C708 - Model C716 Specifications

Carrier C708
148 pages
Print Icon
To Next Page IconTo Next Page
To Next Page IconTo Next Page
To Previous Page IconTo Previous Page
To Previous Page IconTo Previous Page
Loading...
6
Introduction
Models C708/C709/C716/C717
Model C716 Specifications
Freezing Cylinder
Two, 3.4 quart (3.2 liter)
Mix Hopper
Two, 20 quart (18.9 liter)
Beater Motor
Two, 1.5 hp
Refrigeration Unit
Two, approximately 9,500 btu/hr compressors
Refrigerant R404A.
Electrical
Electrical
Maximum
Fuse Size
Minimum
Circuit
Ampacity
Left Right Left Right
208--230/60/1 Air
35 30 26 23
208--230/60/1 Water 30 30 23 23
208--230/60/3 Air 25 25 20 18
220--240/50/1 Air 30 25 23 20
380--415/50/3N~Air 12 12 12 9
This unit may be manufactured in other electrical
characteristics. Refer to the local Taylor Distributor
for availability. (For exact electrical information,
always refer to the data label of the unit.)
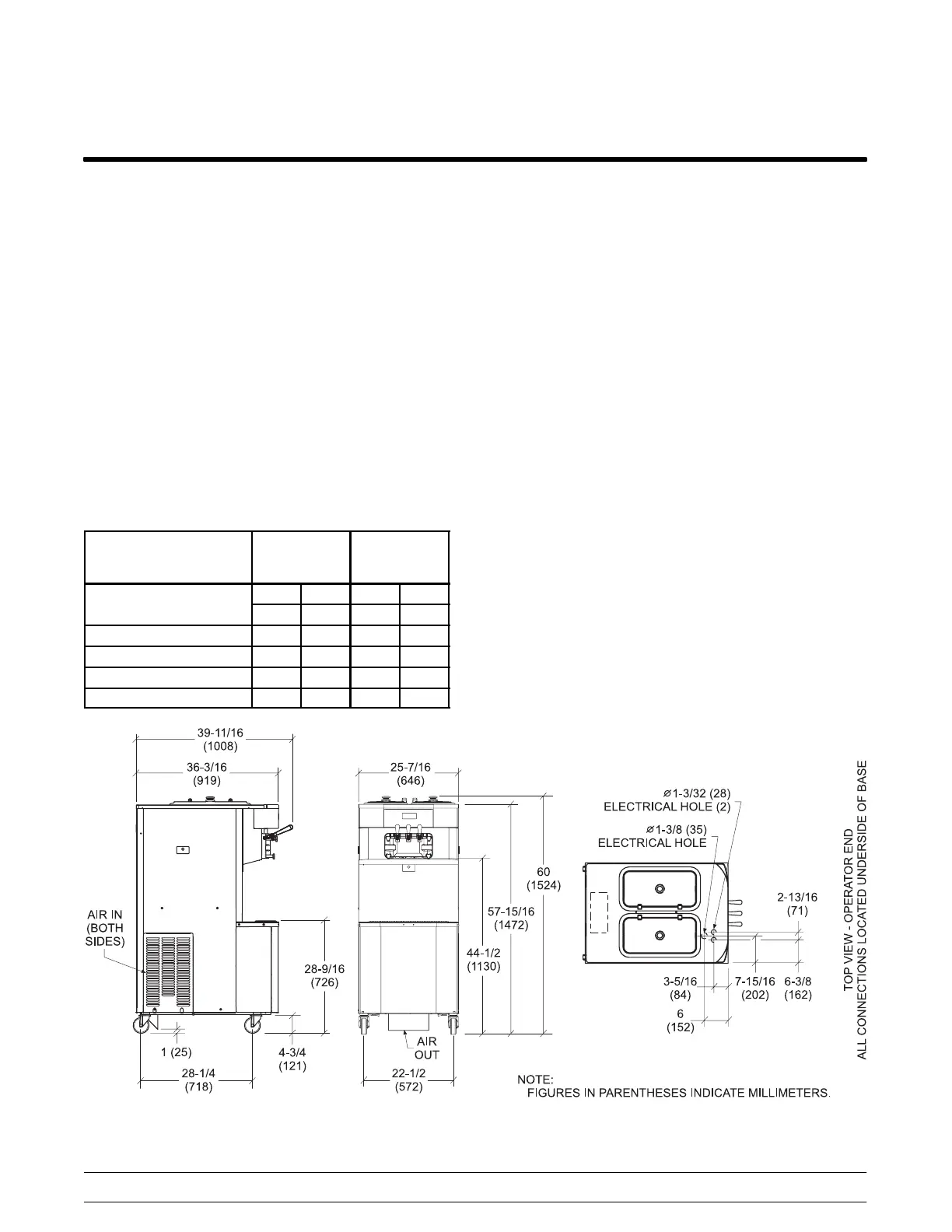
Air Cooled
Clearance: A minimum of 3” (76 mm) is required
around all sides. Install the deflector provided to
prevent recirculation of warm air.
Water Cooled
Water inlet and drain connections under the side of
the base, 1/2” FPT.
Dimensions
Width: 25-7/16” (646 mm)
Height: 60” (1524 mm)
Depth: 36-3/16 (919 mm)
Floor Clearance*: 4-3/4 (121 mm)
*Mounted on standard casters
Approximate Weights
Net: 778 lbs. (353 kgs)
Crated: 816 lbs. (370 kgs)
Volume: 66.5 cu. ft. (1.88 cu. m.)
Figure 3

Table of Contents

Related product manuals