EasyManua.ls Logo

Cinterion DSB75 - Figure 55: Schematic Sheet 5 - SIM Card, I2 C, SPI, Analog and Antenna Interface; Figure 56: Schematic Sheet 6 - Charging Interface

Default Icon
96 pages
Print Icon
To Next Page IconTo Next Page
To Next Page IconTo Next Page
To Previous Page IconTo Previous Page
To Previous Page IconTo Previous Page
Loading...
DSB75 Development Support Board Rev. B1 Hardware Description
Confidential / Released
DSB75_hd_v12 Page 93 of 96 2008-08-26
Figure 55: Schematic sheet 5 – SIM card, I2C, SPI, analog and antenna interface
sheet6
DSB75
SCHEMATIC
TOP HIERARCHY LEVEL
CHARGE
B1
ACCU
1:1
VINPOWER
GND
EN
GND
X600
POWER
B
A
USER
APPR'D
E
D
C
CHARGEGATE
VSENSE
ISENSE
0R
VBAT
BATTEMP
1
2
3
4
6
5-POL
X602
VBAT
6V6
3V3_4V5
1
2
5
6
4
3
S601
BATT+
DATE
Siemens AG
06.07.2004
BATT+
VCHARGE
V600
GND
VOUT
GND
BYP
LP2985IM5X-5.0
3
5
V603
CRS04
N600
GNDGND
V602
SI1012X
GND
GND
R603
0R150R15
R602
R601
0R
C602
220N
21
R604
4K7
100N
C601
12
2
10N
2U2
C604
C605
1
2U2
C603
D
G
S
2
3
1
3
1
2
V601
FDD5614P
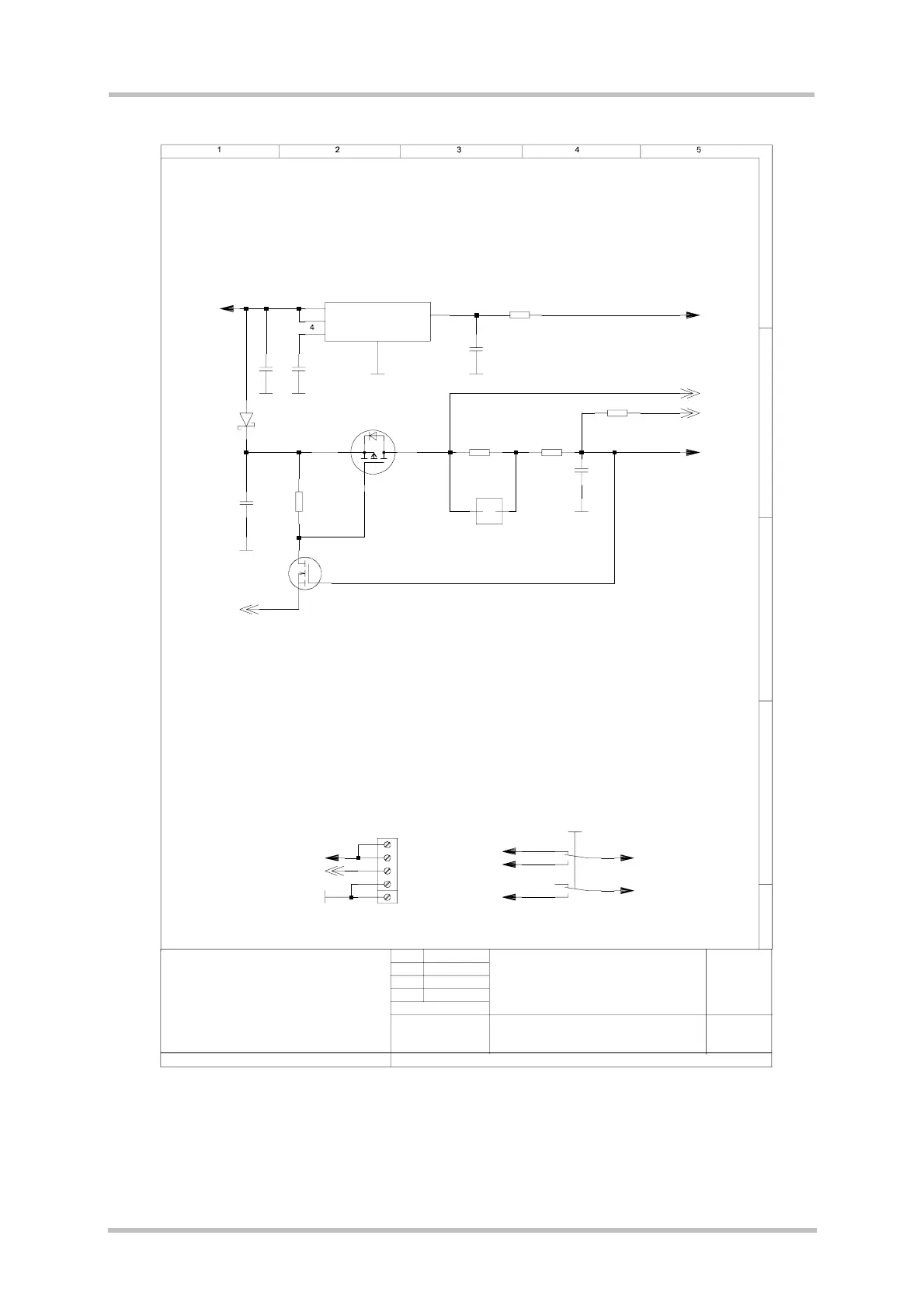
Figure 56: Schematic sheet 6 – charging interface

Table of Contents