EasyManua.ls Logo

Cisco ASR 900 Series - Verifying the Configuration

Cisco ASR 900 Series
172 pages
Print Icon
To Next Page IconTo Next Page
To Next Page IconTo Next Page
To Previous Page IconTo Previous Page
To Previous Page IconTo Previous Page
Loading...
MSP 1+1 for SDH Layer 1 traffic
SDH linear MSP 1+1 provides protection against both fiber cuts and front card or back card failures. MSP
1+1 requires a redundant protection line for every working line. The traffic is simultaneously carried by the
working and the protection lines. Hence, the receiver that terminates the MSP 1+1 should select the traffic
from one of the line and continue to forward the traffic. MSP 1+1 provides protection in unidirectional and
bi-directional modes:
•
Uni-directional Protection: The receiving end can switch from working to protection line without any
coordination at the transmit end since both lines transmit the same information.
•
Bi-directional Protection: The receiving end switches from working to protection line by coordinating
at the transmit end.
Scenario for Bidirectional MSP 1+1
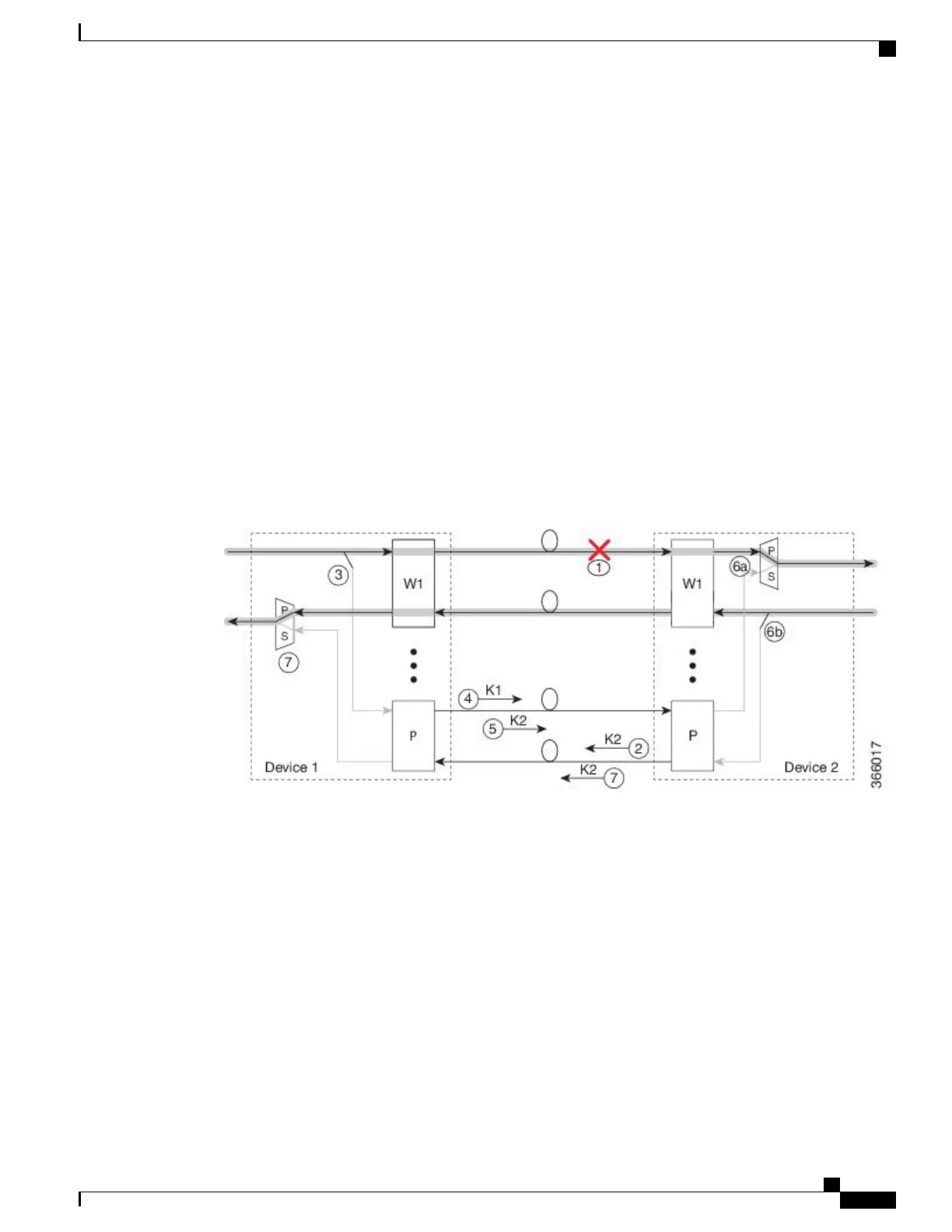
Figure 8: Bidirectional MSP 1+1
In the above figure, two devices are connected to provide MSP 1+1 bi-directional protection. The highlighted
one is the working line and the other is the protection line. The traffic is transmitted on both working and
protection lines and received only on one line.
In a scenario where you encounter a fiber cut,
1
There is a cable cut in the working line. So, the device 2 receives a Loss of Signal (LOS) on working line.
2
Device 2 starts generating K2 byte and sends it to the Device 1 over the protection line.
3
Device 1 receives the K2 byte and reacts on the receiving K2 byte.
4
Device 1 starts sending K1 byte to the Device 2 on the protection line.
5
Device 1 starts sending K2 byte to Device 2 on the protection line.
6
Device 2 receives the K1/K2 byte and starts receiving the data from protection line. The protection line
now acts as the active line.
1-Port OC-192 or 8-Port Low Rate CEM Interface Module Configuration Guide, Cisco IOS XE Everest 16.7.x (Cisco
ASR 900 Series)
115
Configuring MSP on 1-Port OC192/STM-64 or 8-Port OC3/12/48/STM-1/-4/-16 Module
MSP 1+1 for SDH Layer 1 traffic

Table of Contents

Other manuals for Cisco ASR 900 Series

Related product manuals