EasyManua.ls Logo

Condair UDC - Page 130

Condair UDC
148 pages
Print Icon
To Next Page IconTo Next Page
To Next Page IconTo Next Page
To Previous Page IconTo Previous Page
To Previous Page IconTo Previous Page
Loading...
130 Condair CDA and CDA-S
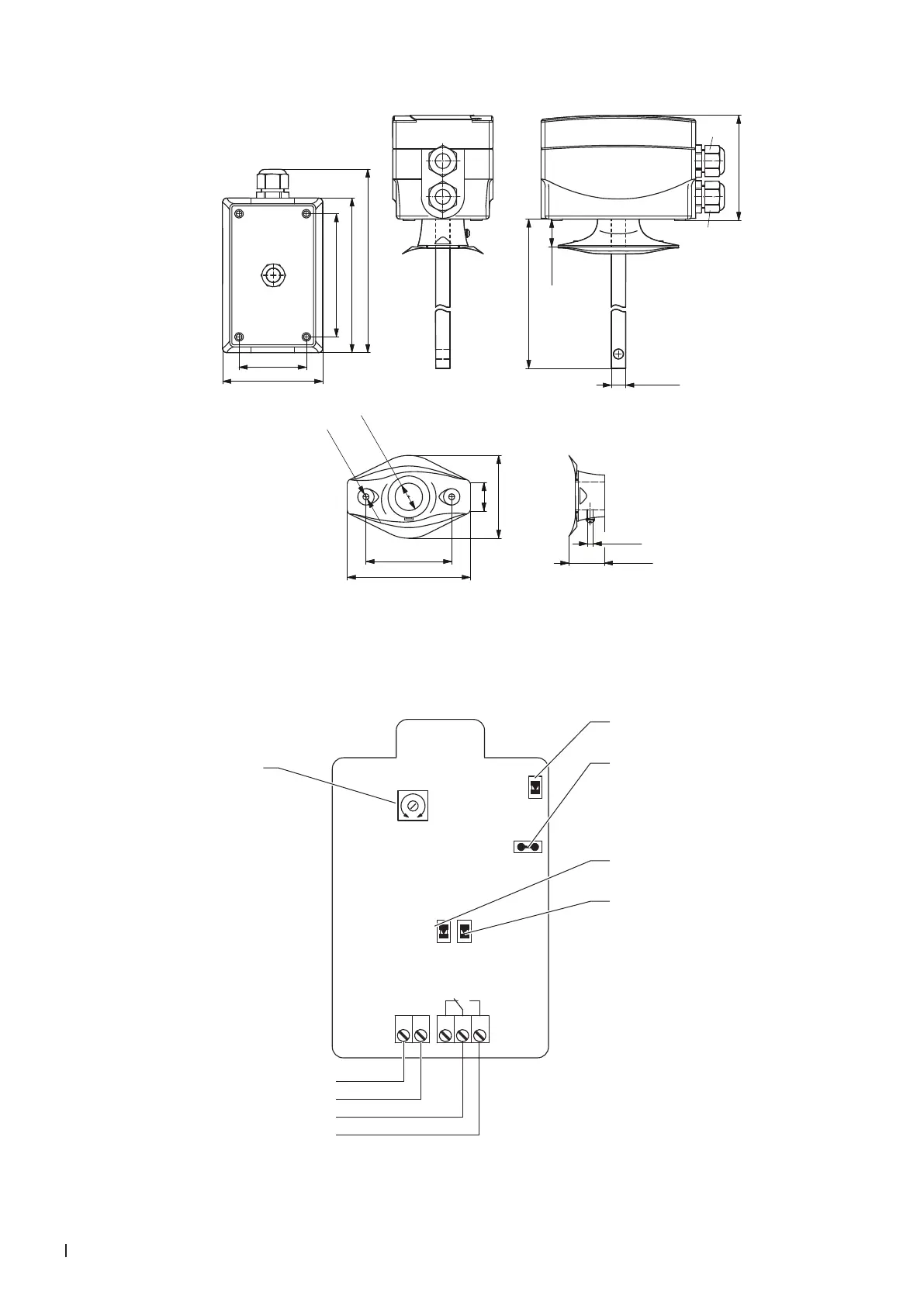
10.6.2 Dimensions CDA or CDA-S
~25 (0.98)
ø3 (0.12)
20 (0.79)
58 (2.28)
60 (2.36)
86 (3.39)
ø20.2 (0.80)
ø5.2 (0.30)
ø10 (0.39)
CDA: 140 (5.51)
CDA-NS: 110 (4.33)
70 (2.76)
86 (3.39)
~126 (4.96)
~108 (4.25)
48 (1.89)
M16x1.5
M16x1.5
73.5 (2.89)
21 (0.83)
Dimensions in mm (inches)
10.6.3 Wiring diagram/Conguration CDA or CDA-S
LED green: Voltage
Jumper start-up override
Jumper set = Start-up override (approx.
60 s) active. Yellow LED lights
No jumper set = Start-up override inactive
LED yellow: Start-up override
LED yellow: Air ow
12 11 141 2
L1 N
NC C NO
0V / GND
24 V AC/DC ±10%
SC
SC
Potentiometer
air speed
min.
0.1 m/s
max.
30 m/s

Table of Contents

Related product manuals