EasyManua.ls Logo

Condair UDC - Page 60

Condair UDC
148 pages
Print Icon
To Next Page IconTo Next Page
To Next Page IconTo Next Page
To Previous Page IconTo Previous Page
To Previous Page IconTo Previous Page
Loading...
60 Condair DCC and DCC-NA
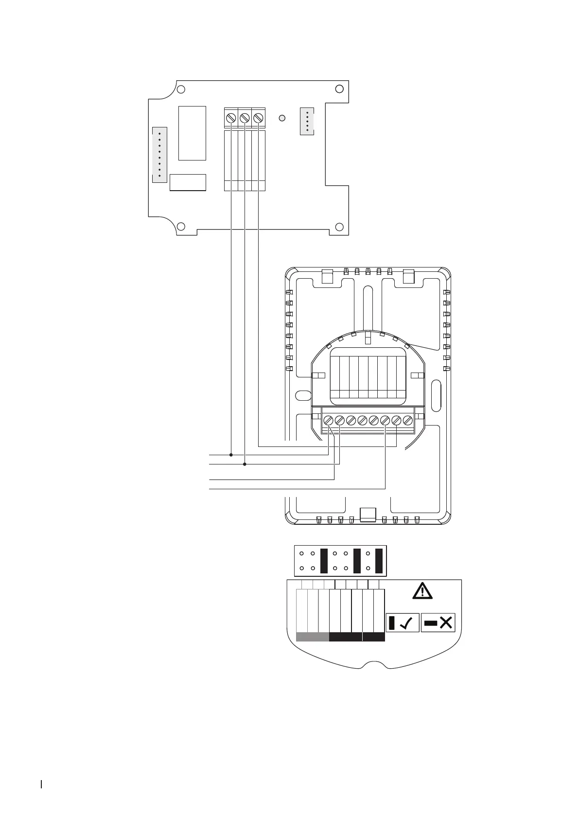
4.7.2.2 Wiring diagram Condair DCC-NA
CDC-NA
24V AC/DC
1
0V / GND
2
H OUT
3
STATUS
LED
0V / GND
1
1 2 3 4 5 6 7 8
24V
2
N/A
3
N/A
4
N/A
5
AO 2-10V
6
Ext. Series In
7
Temp. Reset
8
DCC-NA
24 V AC/DC ±10%
0V / GND
0...10 VDC/0...20 mA
0V / GND
0...10V
0...20mA
RT or Dry-Contact
0...10V
0...20mA
0...10V
0...20mA
RT or Dry-Contact
UI2
AO
UI1
Jumper Placement
0...10V
0...20mA
RT or Dry-Contact
UI2
0...10V
0...20mA
0...10V
0...20mA
RT or Dry-Contact
AO
UI1

Table of Contents

Related product manuals