EasyManua.ls Logo

CPS SCA60KTL-DO/US-480 - Wiring Boxes

Default Icon
151 pages
Print Icon
To Next Page IconTo Next Page
To Next Page IconTo Next Page
To Previous Page IconTo Previous Page
To Previous Page IconTo Previous Page
Loading...
41
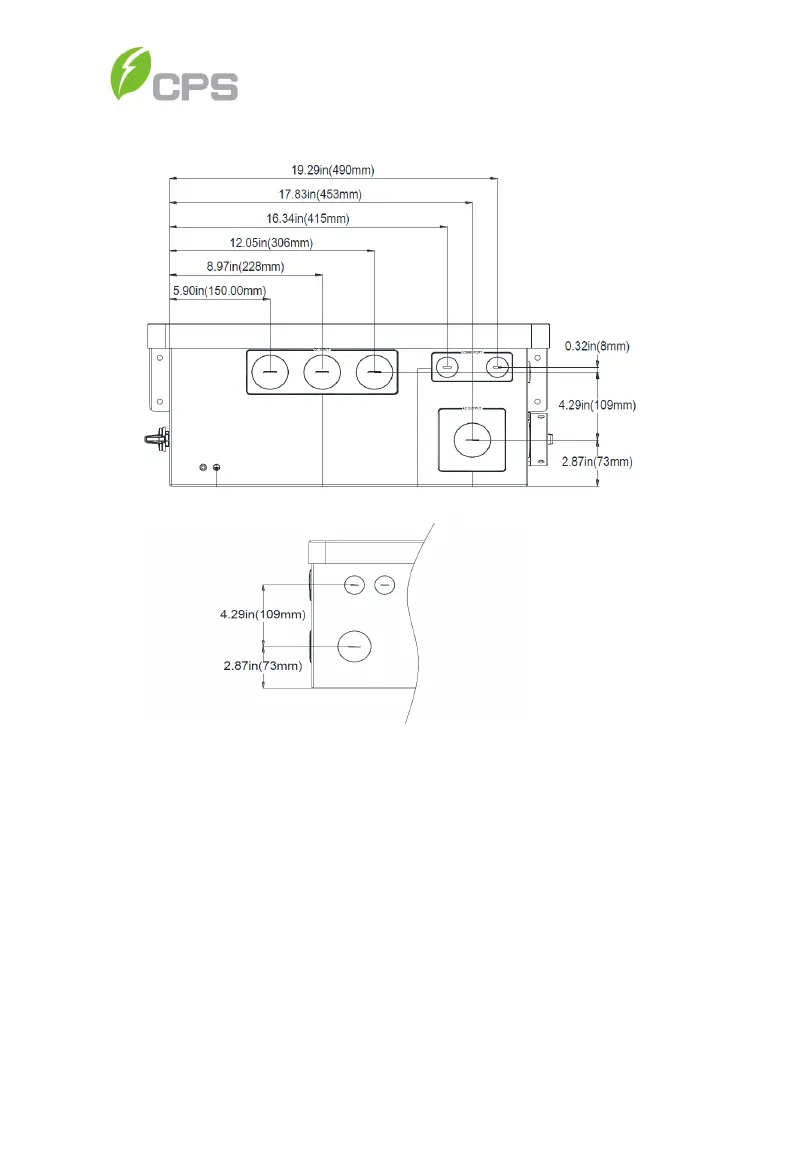
3.3.2 Wiring Boxes
Figure 3-20 Conduit Knock-out Locations on the wirebox
Knock-outs for DC input, (3) 1-1/2 inch Trade Size (1.98" Dia) and
(1) removable gland plate for custom size conduit (i.e. when use of 2
inch or 2-1/2 inch Trade Size conduit is required) – later models may
not have gland plates.
Knock-outs for communication, 3/4 inch Trade Size (1.11" Dia)
Knock-out for AC output, (1) 1-1/2 inch Trade Size (1.98" Dia) on a
removable gland plate for custom size conduit (i.e. when use of 2
inch or 2-1/2 inch Trade Size is required)
External ground connection point (M6)

Table of Contents

Related product manuals