EasyManua.ls Logo

Daikin VRV K - Failure Diagnosis for Inverter System; Points of Diagnosis

Daikin VRV K
170 pages
Print Icon
To Next Page IconTo Next Page
To Next Page IconTo Next Page
To Previous Page IconTo Previous Page
To Previous Page IconTo Previous Page
Loading...
Si-95 Failure Diagnosis for Inverter System
Troubleshooting Inverter K Series 113
3. Failure Diagnosis for Inverter System
3.1 Points of Diagnosis
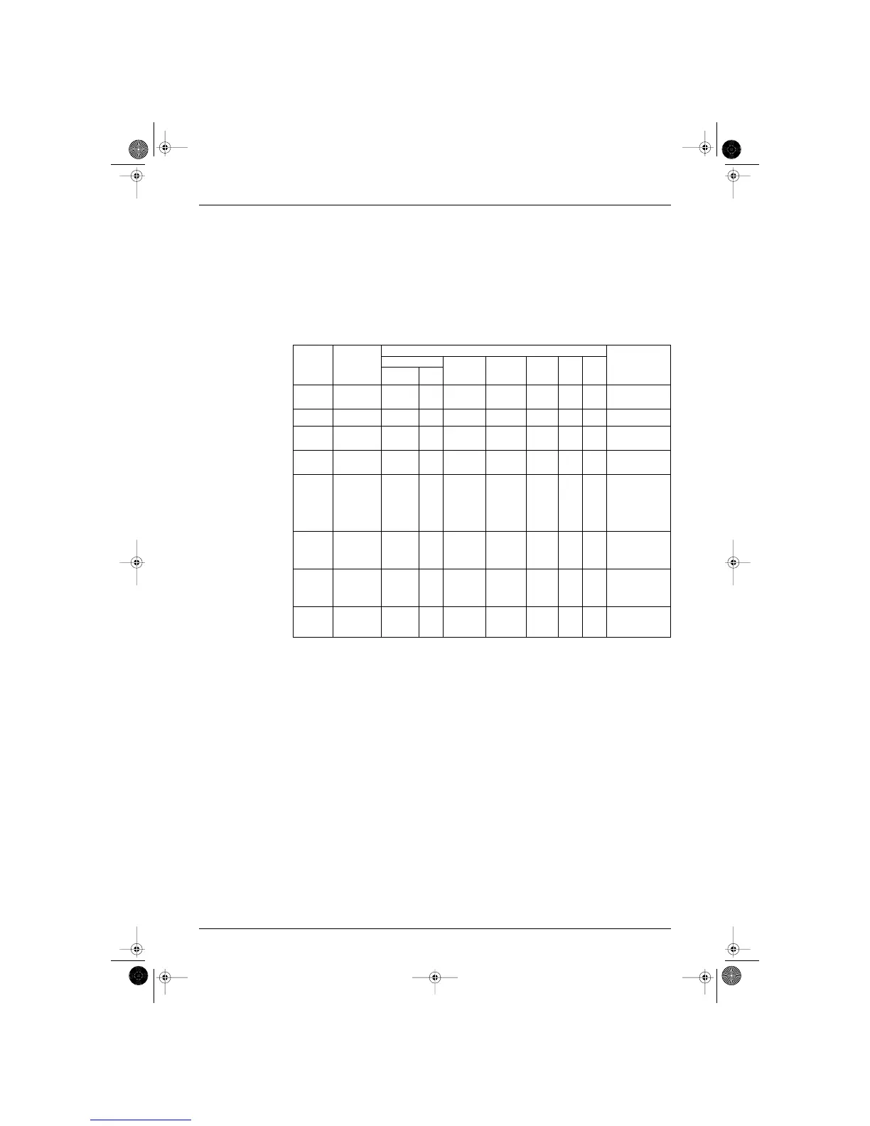
The main causes for each malfunction code are given in the table below. (For details refer to the next page
and those following.)
: Failure is probable
8 : Failure is possible
: Failure is improbable
: Failure is impossible
Malfunction
code
Contents of
malfunction
Location of failure
Point of diagnosis
Inverter Compressor Refrigerant
system
Outdoor
unit PC
board
Other Field
cause
PC board
power unit
Other
L4 Radiator fin
temperature
rise
——
Is the intake port of
the radiator fin
clogged?
L5 Instantaneous
over-current
8
——
Inspect the
compressor.
L8 Electronic
thermal
8 ——
Inspection the
compressor and
refrigerant system.
L9 Stall
prevention
8 ——
Inspection the
compressor and
refrigerant system.
LC Malfunction of
transmission
between
inverter PC
board and
outdoor unit
PC board
8 ——
——
Inspect the
connection
between the
inverter PC board
and outdoor unit PC
board. Next, inspect
the inverter PC
board.
U2 Abnormal
current/
voltage
88 ——
Inspect the fuse
on the inverter PC
board.
Check the DC
voltage.
P1 Over-ripple
protection
88 ——8
Open phase
Current/voltage
imbalance
Defect of main
circuit wiring
P4 Defect of
radiator fin
temperature
sensor
8
——
Inspect the radiator
fin thermistor.
SI-95.BOOK Page 113 Friday, March 31, 2000 10:59 AM

Table of Contents

Related product manuals