EasyManua.ls Logo

Daikin VRV K - Allowed Range of Indoor Unit and BS Unit Connection

Daikin VRV K
170 pages
Print Icon
To Next Page IconTo Next Page
To Next Page IconTo Next Page
To Previous Page IconTo Previous Page
To Previous Page IconTo Previous Page
Loading...
Si-95 Outline
General Information Inverter K Series 3
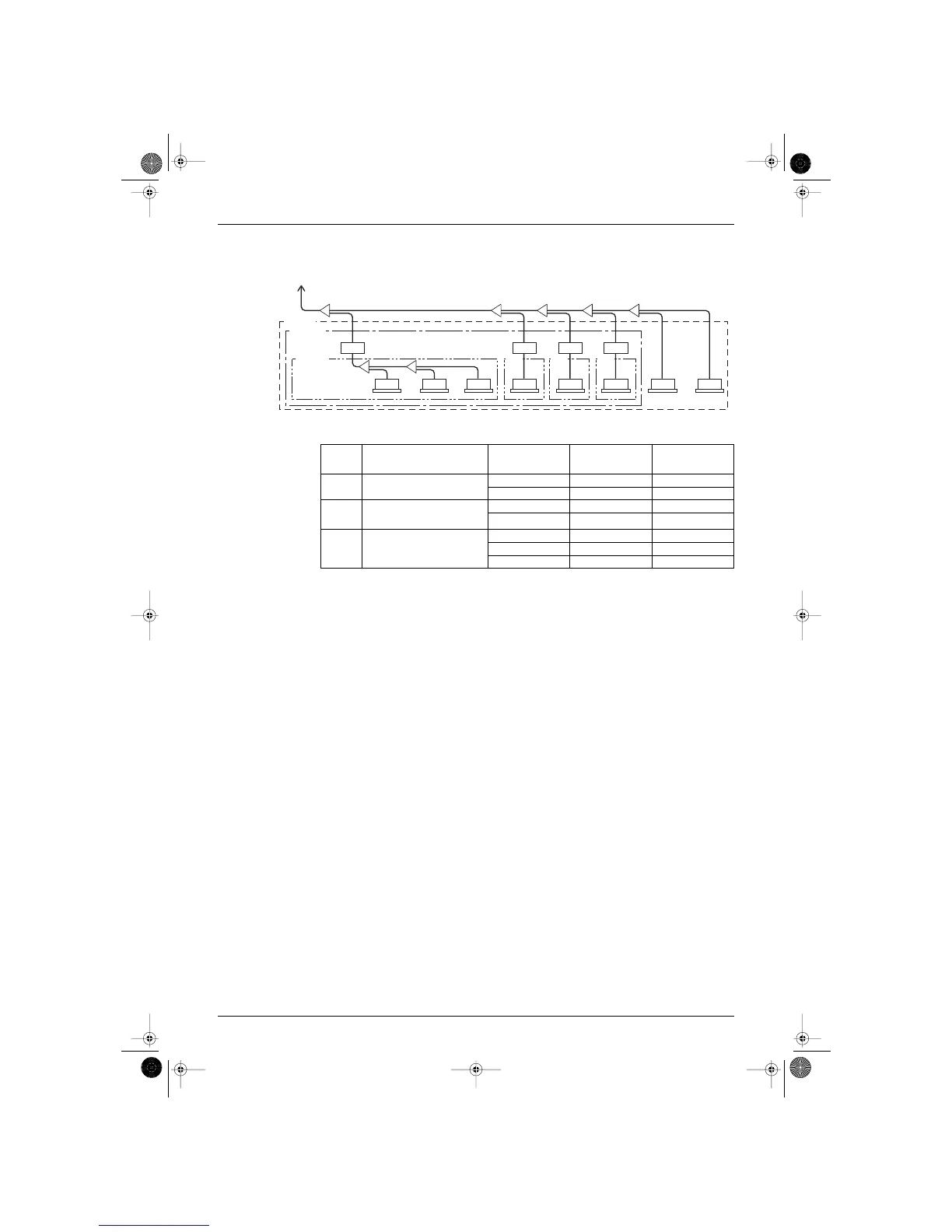
1.2 Allowed Range of Indoor Unit and BS Unit Connection
Arrange systems to conform below conditions referring to above diagram.
Indoor unit
( Cooling
only unit )
( Cooling
only unit )
BS unit
Range A
Range B
Range C
Range C Range C Range C
Range Item Model of outdoor
unit and BS unit
Total capacity of
connectable indoor
units
Max. number of
connectable indoor
units
Range A Total indoor unit capacity RSEY8KLY1 11.2 to 29.1kW 13 units
RSEY10KLY1 14 to 36.4kW 16 units
Range B Total indoor unit capacity
allowed for simultaneous
cooling/heating operations
RSEY8KLY1 11.2kW or more 13 units
RSEY10KLY1 14kW or more 16 units
Range C Total indoor unit capacity
allowed for connection to BS unit
BSV100KLV1 less than 11.2kW 5 units or less
BSV160KLV1 11.2 to 18kW 6 units or less
BSV250KLV1 18 to 28kW 16 units or less
SI-95.BOOK Page 3 Friday, March 31, 2000 10:59 AM

Table of Contents

Related product manuals