EasyManua.ls Logo

Daikin VRV K - 1.22 Freeze Prevention

Daikin VRV K
170 pages
Print Icon
To Next Page IconTo Next Page
To Next Page IconTo Next Page
To Previous Page IconTo Previous Page
To Previous Page IconTo Previous Page
Loading...
Si-95 Functions
Functions Inverter K Series 29
1.14 Low Noise Control
If sound produced by outdoor units is a problem at night, etc., you can reduce the running noise by 2 to 3
dB by running the outdoor unit fans and compressors at low speed via contact input (low noise input) from
outside. When low noise input is received (contact short circuit) while the compressor is running (except
when defrosting or oil return is being carried out), the operation upper limit is as follows.
When cooling: Step1 2 high pressure > 24 kg/cm
2
(2.35 MPa)
Step2 1 high pressure < 19 kg/cm
2
(1.86 MPa)
Low noise control reduces capacity by limiting the fan speed and compressor frequency. The load when
heating is particularly large at night when the outdoor temperature is low, and could result in insufficient
capacity.
During low noise control, retry is unlimited for standby (forced thermostat OFF) produced by high
pressure, low pressure or discharge pipe temperature.
An optional external control adaptor of outdoor units is required for low noise control. For method of
connection, see low noise operation in the test operation section.
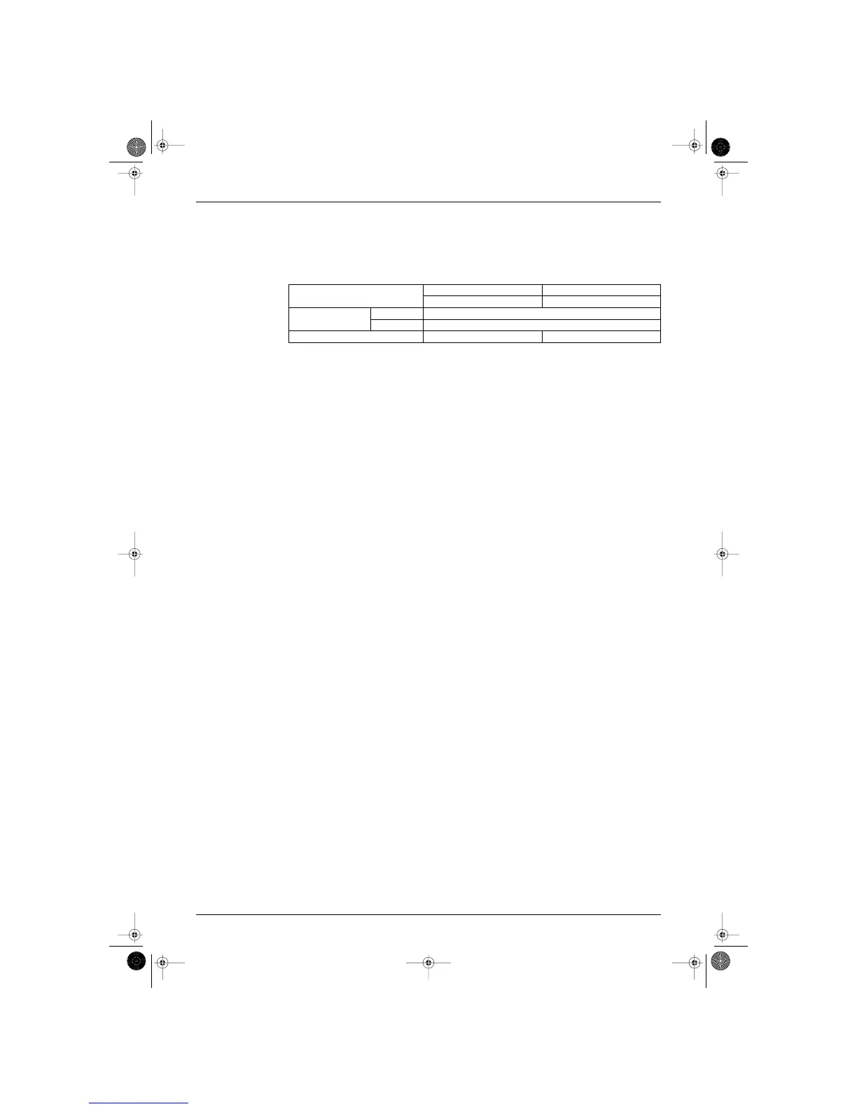
8K 10K
(8HP) (10HP)
Outdoor unit fan step 1 H tap+OFF
step 2 L tap+OFF
compressor 86Hz+OFF 96Hz+OFF
SI-95.BOOK Page 29 Friday, March 31, 2000 10:59 AM

Table of Contents

Related product manuals