EasyManua.ls Logo

Daikin VRV K - 1.11 BS Changeover Control

Daikin VRV K
170 pages
Print Icon
To Next Page IconTo Next Page
To Next Page IconTo Next Page
To Previous Page IconTo Previous Page
To Previous Page IconTo Previous Page
Loading...
Si-95 Functions
Functions Inverter K Series 15
1.4 Outline of Control
1.4.1 Inverter Compressor, Motorized PI Control
1. Compressor PI control
Cooling operation
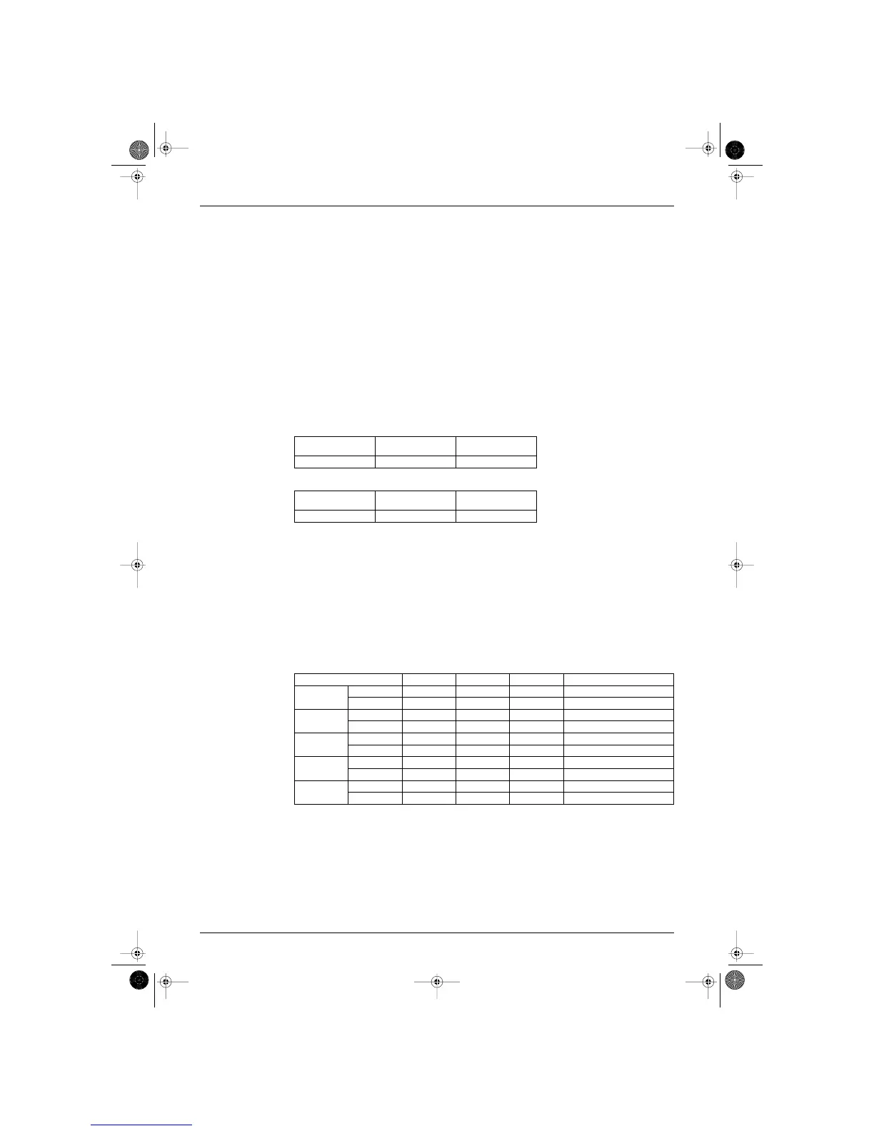
Controls TeS (target Te value) at constant ··· Constant-level control of Te (low pressure equivalent
saturation temperature)
TeS = 5.5˚C
Heating operation
Controls TcS (target Tc value) at constant ··· Constant-level control of Tc (high pressure equivalent
saturation temperature)
TcS = 48˚C
Simultaneous cooling/heating operations
Controls TeS and TcS at constant
TeS = 5.5˚C
TcS = 48˚C
TeS setting values
* TcS setting values
2. Motorized valve PI control
Provides PI control for the motorized valves (Y1E and Y2E) to maintain a constant superheat (SH) level at
the outlet of the outdoor heat exchanger (evaporator).
SHs = Ts - Te
SHs = 5˚C
Ts1 :Suction pipe temperature (R4-1T)
Ts2: Suction pipe temperature (R4-2T)
3. Heat exchanger PI control
Provides PI control for the motorized valve (Y1E) to maintain TeS and TcS at constant.
Motorized valve mode
LM
(Factory setting)
H
2.5 5.5 8.5
LM
(Factory setting)
H
43 46 49
EV mode Initial opening Max. opening Min. opening Normal opening
1 Y1E 2000 2000 2000 Fixed at 2000
Y2E 2000 2000 2000 Fixed at 2000
2 Y1E 2000 2000 1400 Heat exchanger PI control
Y2E 0 0 0 Fixed at 0
3 Y1E 750 1400 100 Heat exchanger PI control
Y2E 250 400 100 Motorized valve PI control
4 Y1E 0 0 0 Fixed at 0
Y2E 700 1000 100 Motorized valve PI control
5 Y1E 700 2000 100 Motorized valve PI control
Y2E 500 2000 100 Motorized valve PI control
SI-95.BOOK Page 15 Friday, March 31, 2000 10:59 AM

Table of Contents

Related product manuals