EasyManua.ls Logo

Daikin VRV K - Low Noise Operation

Daikin VRV K
170 pages
Print Icon
To Next Page IconTo Next Page
To Next Page IconTo Next Page
To Previous Page IconTo Previous Page
To Previous Page IconTo Previous Page
Loading...
Test Operation Si-95
58 Test Operation Inverter K Series
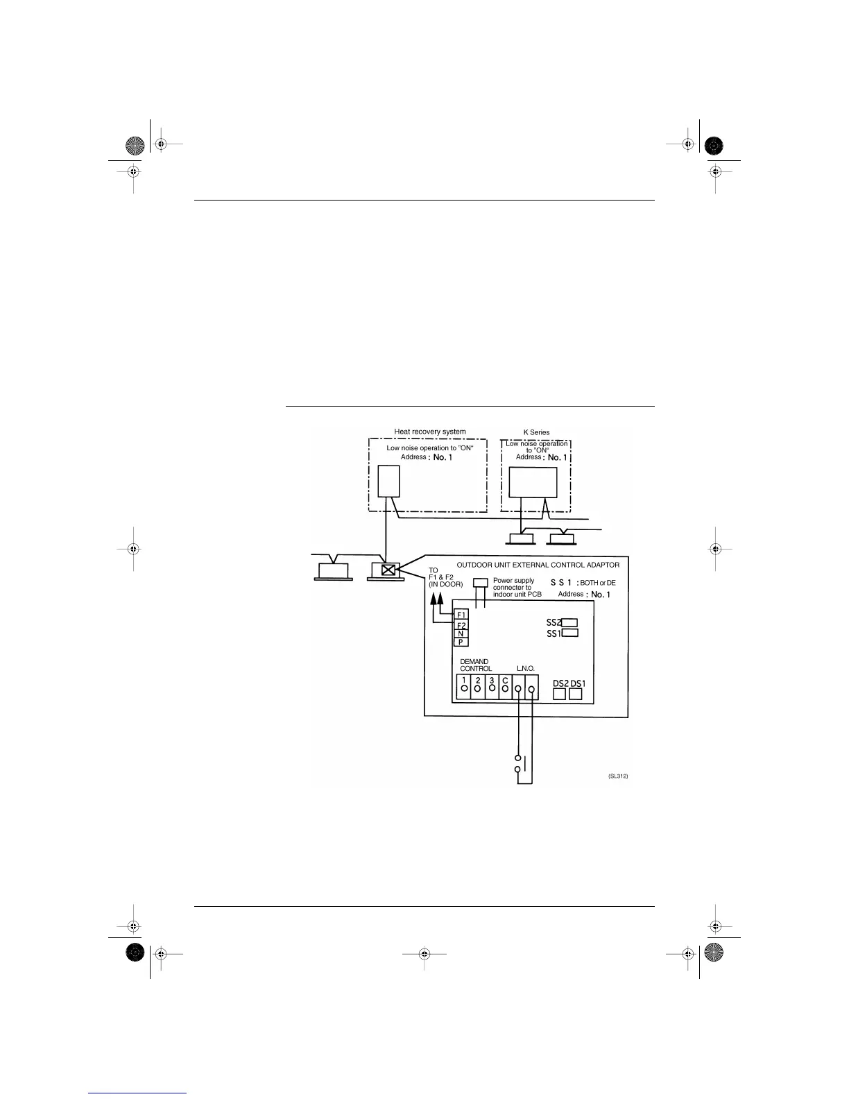
1.7 Low Noise Operation
By connecting the external contact input to the low noise input of the outdoor unit external control adaptor
for outdoor unit (optional), you can save power and lower operating noise by 2 -3 dB.
1. Outdoor unit field setting
Setting mode 1: Set low noise operation to ON.
Setting mode 2: Match low noise operation and demand control address with address of outdoor unit
external control adaptor.
2. Outdoor unit external control adaptor setting
Function switch (SS1)
Set to BOTH or DE.
Address setting switches (DS1, DS2)
Match with outdoor unit low noise operation and demand control address.
3. Short-circuit the low noise input of outdoor unit external control adaptor for outdoor unit.
Low noise control
system example
SI-95.BOOK Page 58 Friday, March 31, 2000 10:59 AM

Table of Contents

Related product manuals