EasyManua.ls Logo

Daikin VRV K - BS Changeover Control

Daikin VRV K
170 pages
Print Icon
To Next Page IconTo Next Page
To Next Page IconTo Next Page
To Previous Page IconTo Previous Page
To Previous Page IconTo Previous Page
Loading...
Si-95 Functions
Functions Inverter K Series 25
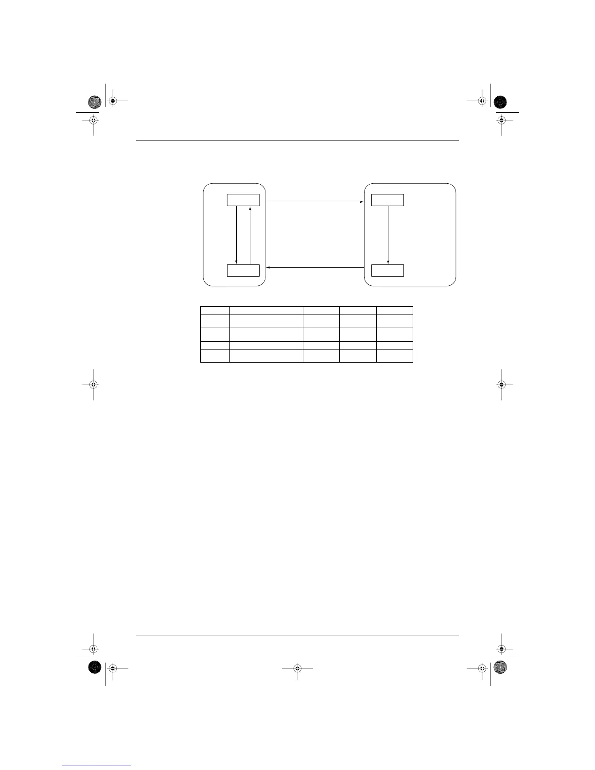
1.11 BS Changeover Control
The solenoid valve of the BS unit is switched according to the indoor unit operating condition.
When the solenoid is operable, if the operating condition differs from the solenoid condition, the solenoid is
switched according to the above table.
However, the following conditions take precedence.
Condition 1
Normal operation Oil return, defrost
Cooling
Condition 2
Heating
Condition 3
Condition 4
Oil return, defrost
Oil return, defrost complete
Discharge defrost
Discharge oil return
Suction defrost
Suction oil return
(VF006)
Condition Indoor unit operating condition Y3S Y2S Y1S
ON: Open
OFF: Closed
1 Cooling
Heating stop 1
OFF ON OFF
2 Heating thermostat OFF
Heating thermostat ON
ON OFF 2
3 Discharge oil return OFF OFF OFF
4 Suction oil return
Defrost
ON ON OFF
1 : Condition 2 results in heating stop units when no unit in the system is in cooling operation.
2 : Condition 1 results when a unit connected to the BS unit is in heating thermostat ON condition
during simultaneous cooling/heating operations.
SI-95.BOOK Page 25 Friday, March 31, 2000 10:59 AM

Table of Contents

Related product manuals