EasyManua.ls Logo

Daikin VRV K - Freeze Prevention

Daikin VRV K
170 pages
Print Icon
To Next Page IconTo Next Page
To Next Page IconTo Next Page
To Previous Page IconTo Previous Page
To Previous Page IconTo Previous Page
Loading...
Si-95 Functions
Functions Inverter K Series 39
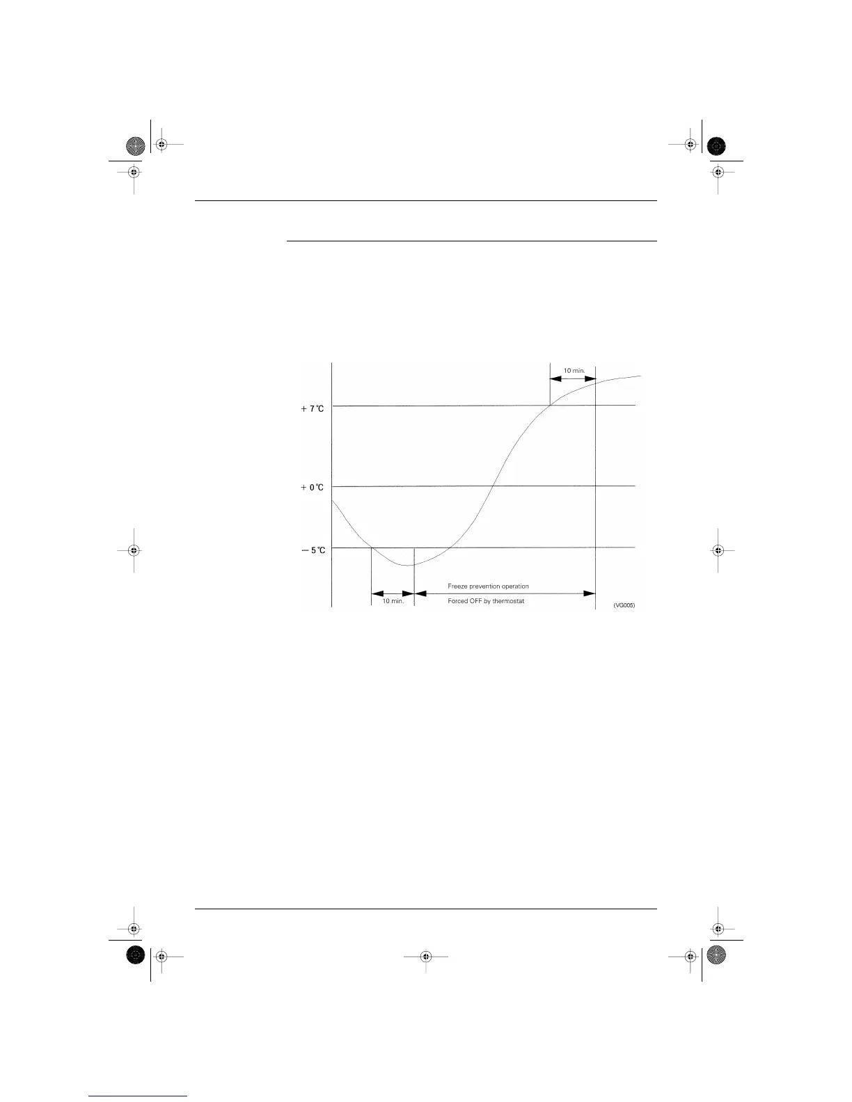
1.22 Freeze Prevention
Freeze Prevention
by Off Cycle
(Indoor Unit)
When the temperature detected by liquid pipe temperature thermistor (R2T) of the indoor unit heat
exchanger drops too low, the unit enters freeze prevention operation in accordance with the following
conditions, and is also set in accordance with the conditions given below.
Conditions for starting freeze prevention: Temperature is -1˚C or less for total of 40 min., or temperature is
-5˚C or less for total of 10 min.
Conditions for stopping freeze prevention: Temperature is +7˚C or more for 10 min. continuously
Ex: Case where temperature is -5˚C or less for total of 10 min.
SI-95.BOOK Page 39 Friday, March 31, 2000 10:59 AM

Table of Contents

Related product manuals