EasyManua.ls Logo

Daikin VRV K - 1.13 Step Down; Safety Control → Standby (Forced Thermostat OFF) → Stop Due to Malfunction

Daikin VRV K
170 pages
Print Icon
To Next Page IconTo Next Page
To Next Page IconTo Next Page
To Previous Page IconTo Previous Page
To Previous Page IconTo Previous Page
Loading...
Si-95 Functions
Functions Inverter K Series 17
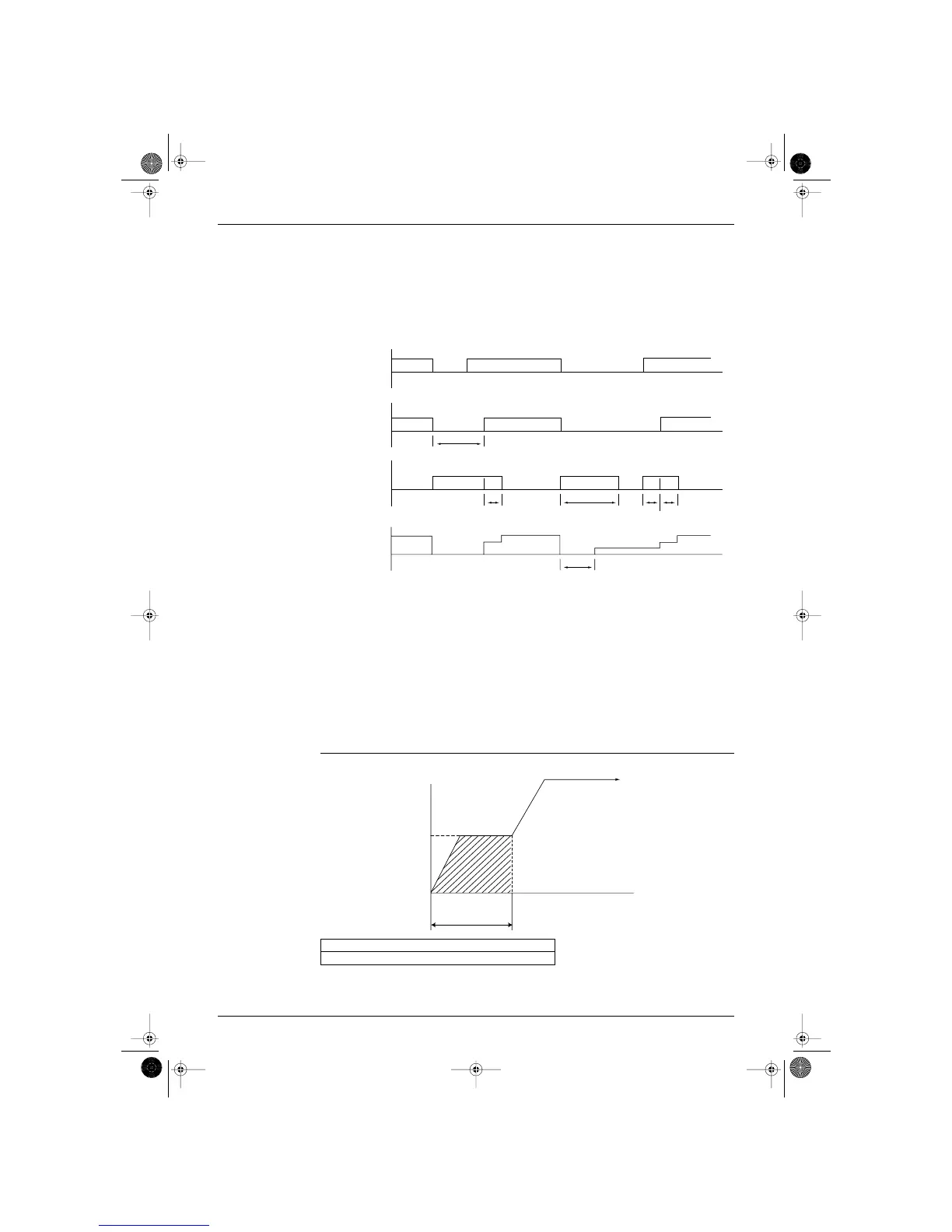
1.5 Safety for Restart
1.5.1 Restart Safety Timer
The compressor will not run for five minutes by making forced thermostat OFF condition in order to prevent
it from being turned on and off in rapid succession, and to equalize pressure in the refrigerant circuit. It
however restarts automatically after five minutes passes if it is in thermostat ON condition. The pressure
equalizing solenoid valve is actuated for 15 minutes after the compressor stops in order to equalize
pressure.
If 15 minutes or more has elapsed since the compressor was turned off, turn the solenoid valve for
equalizing pressure on for about 1 minute and equalize the pressure.
When heating, to prevent noise produced by the passing of indoor units refrigerant to equalize pressure
after the compressor stops, fully close the indoor units electronic expansion valve for 10 minutes.
1.5.2 Soft Start
The following control is carried out to protect the compressor and inverter.
1. Operates at low frequency (fixed) for 1 minute after compressor starts. (Prevents liquid refrigerant
backflow)
2. Hot gas bypass solenoid valves open and start low load.
Soft Start of
Compressor
Thermostat
Thermostat ON
Thermostat
OFF
Thermostat OFF
Thermostat ON Thermostat ON
Compressor
ON ON
ON
OFF OFF
5 minutes
Pressure equalizing
solenoid valve
1 minute
(Soft start)
15 minutes 1 minute
(Pressure
equalizing)
1 minute
(Soft start)
Indoor unit
electronic expansion
valve (when heating)
Linear control
Fully closed
0 pulses
Linear control
Fully closed
0 pulses
1000 pulses
10 minutes
240 pulses
1000 pulses
Linear control
OFF
OFF
ON
ON
OFF
ON
OFF
(VL005)
Frequency during soft start
42Hz+OFF
Compressor frequency
Soft start
1 minute
42Hz
Time
(VG001)
SI-95.BOOK Page 17 Friday, March 31, 2000 10:59 AM

Table of Contents

Related product manuals