EasyManua.ls Logo

Daikin VRV K - 1.20 Louver Control for Preventing Ceiling Dirt

Daikin VRV K
170 pages
Print Icon
To Next Page IconTo Next Page
To Next Page IconTo Next Page
To Previous Page IconTo Previous Page
To Previous Page IconTo Previous Page
Loading...
Functions Si-95
26 Functions Inverter K Series
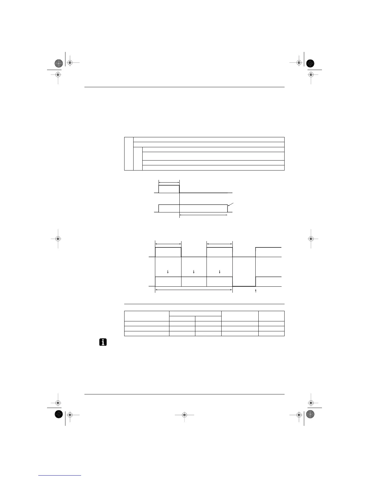
1.12 Pump Down Residual Operation
If refrigerant is remaining in the accumulator when the compressor starts, liquid refrigerant is sucked into
the compressor, diluting the refrigerant machine oil and reducing the lubricating performance. To prevent
this, the pump-down operation discharges refrigerant from the low pressure side when the unit is not in
operation.
Residual operation may be carried out for Max.10 minutes under the following conditions.
1.
2. When the thermostat is ON during residual operation, residual operation is not carried out if the total of
1+2+3 is 10 minutes or more.
Outdoor Unit
Function
Notes During defrost or oil return, residual operation is not carried out even if a stop command comes.
Forced thermostat OFF occurs if defrost or oil return signal comes during residual operation.
&
Secondary side heat exchanger 4 way valve (Y2R) is ON.
Discharge pipe thermistor (R3-1T) on inverter side: 95˚C or lower
OR
Outside air temperature thermistor (R1T) < 0˚C
When compressor continuous operating time is less than 1 minutes and thermostat is OFF, or when
stop command is received from remote controller
Within 20 minutes after defrost or oil return operation
R5T (oil temperature) Te+15
Thermostat
Compressor and
outdoor unit fan
Max. 10 min.
ON
OFF
ON
OFF
Residual operation for 10 min.
Operation may stop during the 10 minutes
residual operation due to protection discharge,
high/low pressure, etc.
(VL006)
Thermostat
Max. 10 min. Max. 10 min.
Compressor and
outdoor unit fan
Residual
operation
Residual operation not carried out
if 1 + 2 + 3 is 10 minutes or more.
ON
OFF
ON
OFF
(VL007)
Thermostat
ON
12 3
Outdoor air (R1T) Compressor Electronic expansion
valve
Time
INV STD
R1T < -10˚C 86Hz OFF 0~300 pulses 10 min.
-10˚C R1T < 0˚C 76Hz OFF 0~300 pulses 10 min.
R1T 0˚C 60Hz OFF 0~300 pulses 10 min.
SI-95.BOOK Page 26 Friday, March 31, 2000 10:59 AM

Table of Contents

Related product manuals