EasyManua.ls Logo

Daikin VRV K - 1.6 Equalized Oil Level Operation

Daikin VRV K
170 pages
Print Icon
To Next Page IconTo Next Page
To Next Page IconTo Next Page
To Previous Page IconTo Previous Page
To Previous Page IconTo Previous Page
Loading...
Si-95 Functions
Functions Inverter K Series 9
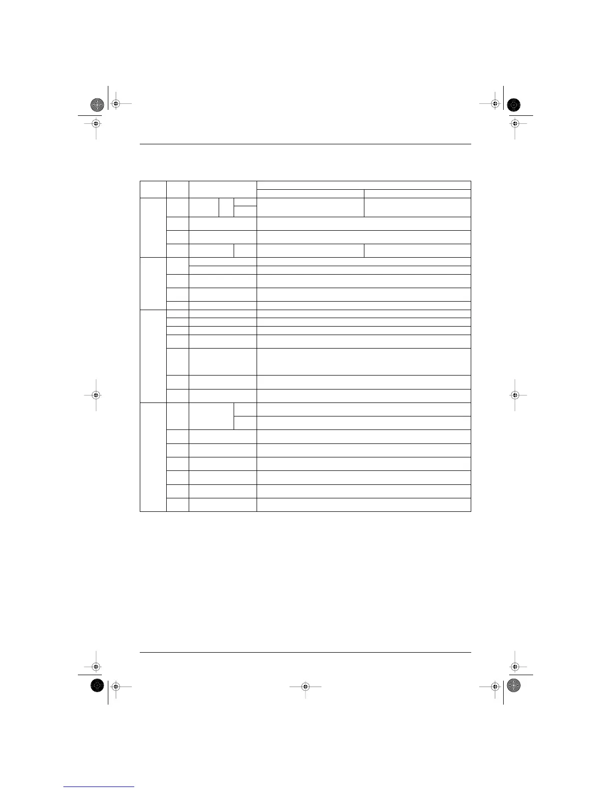
1.2 List of Safety Devices and Functional Parts Setting Values
1.2.1 Outdoor Unit RSEY8·10KLY1(E) (8 · 10HP)
Item Symbol Name Type
RSEY8KLY1(E) RSEY10KLY1(E)
Comp-
ressor
Inverter
side Model
Output
Y1 INV JT100BAVTYE 3.5 kW JT100BAVTYE 3.5 kW
STD JT100BATYE 2.2 kW JT160BATYE 3.75kW
Compressor safety
thermostat
Discharge pipe thermistor 135˚C OFF
J1HC/
J2HC
Crank case heater 33W+33W
F2C Over-current
relay
Y1 HOE-20F-TRA1
10A
HOE-20F-TRA1
13A
Safety
device
Q1M
Q2M
Fan motor 140W+230W
Safety thermostat 140W: Open 120 ± 5˚C, 230W: 135 ± 5˚C
S1HP Pressure switch (for high
pressure safety)
20SP-688-6 OFF: 27.5+0~–1.0kg/cm
2
ON: 20.0+1.0~–1.0kg/cm
2
S2HP Pressure switch (for high
pressure safety)
20SP-688-6 OFF: 27.5+0~–1.0kg/cm
2
ON: 20.0+1.0~–1.0kg/cm
2
Fusible plug FPG-3D 70~75˚C
Sensor SENPH Pressure sensor PS8030A 0~30kg/cm
2
(0~2.94MPa)
SENPL Pressure sensor PS8030A 0~10kg/cm
2
(0~0.98MPa)
R1T Thermistor (for outdoor air) 3.5~360K
R2-1T
R2-2T
Thermistor
(for heat exchange)
3.5~360K
R3-1T Thermistor (for inverter
discharge pipe)
3.5~400K
R3-2T Thermistor (for standard
discharge pipe)
3.5~400K
R4-1T
R4-2T
Thermistor
(for suction pipe)
3.5~360K
R5T Thermistor
for inverter oil temperature)
3.5~360K
Other
functions
/parts
Y1E Electronic
expansion valve
When
cooling
ON: 2,000 pulses (Fully open); OFF: 0 pulses (Fully closed)
When
heating
ON: PI control; OFF: 0 pulses (Fully closed)
Y1S Solenoid valve
(pressure equalizing)
ST10D
Y2S Solenoid valve
(for hot gas bypass)
NEV603
Y3S Solenoid valve
(for inverter injection)
ST10D
Y4S Solenoid valve
(for standard injection)
ST10D
Y5S
Y7S
Solenoid valve
(for discharge gas)
NEV603
Y6S Solenoid valve
(for liquid pressure)
NEV603
SI-95.BOOK Page 9 Friday, March 31, 2000 10:59 AM

Table of Contents

Related product manuals