EasyManua.ls Logo

Daikin VRV K - 1.16 Compressor Capacity Control

Daikin VRV K
170 pages
Print Icon
To Next Page IconTo Next Page
To Next Page IconTo Next Page
To Previous Page IconTo Previous Page
To Previous Page IconTo Previous Page
Loading...
Si-95 Functions
Functions Inverter K Series 21
1.8 Defrost
Melts frost which might collect on outdoor heat exchangers during heating in order to recover their heat
transfer performance.
Conditions for executing defrost
Tc : High pressure equivalent saturated temperature
T = C (Outdoor temp.) α
(C is constant)
C : Tair 0˚C 0.8
Tair > 0˚C 0.6
Tair = Outdoor air temperature
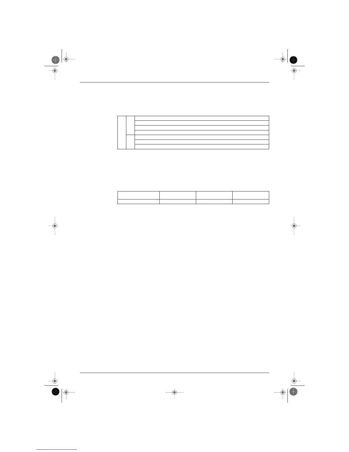
The values of (α) according to defrost temperature changeover switch are given in the table below.
Therefore, if outdoor temperature is 0˚C:
(1) If position L, Tcoil (R2-1T, R2-2T) -12˚C
(2) If position M, Tcoil (R2-1T, R2-2T) -10˚C
(3) If position H, Tcoil (R2-1T, R2-2T) -8˚C
Because defrost operation is carried out, set to the H position if frost builds up easily, and set to L if not.
Factory set is position M.
OR
&
At least 20 minutes have elapsed since completion of oil return or since compressor starts.
High pressure < 20k (Tc = 52.4ºC)
Compressor is running at least 30 minutes since completion of previous defrost.
Either liquid pipe thermal detection temperature (R2-1T, R2-2T) < TºC for 5 minutes.
&
Forced defrost test pin (MDS) is shorted.
Liquid pipe thermal detection temperature (R2-1T, R2-2T) < 12.5ºC for all units
High pressure < 20k (Tc = 52.4ºC)
Switch position
LED (H4P, H5P, H6P, H7P)
L
(
7778)
M
(7787)
H
(7877)
(deg) 12 10 8
SI-95.BOOK Page 21 Friday, March 31, 2000 10:59 AM

Table of Contents

Related product manuals