EasyManua.ls Logo

Daikin VRV K - 1.17 Te; Tc Setting

Daikin VRV K
170 pages
Print Icon
To Next Page IconTo Next Page
To Next Page IconTo Next Page
To Previous Page IconTo Previous Page
To Previous Page IconTo Previous Page
Loading...
Functions Si-95
22 Functions Inverter K Series
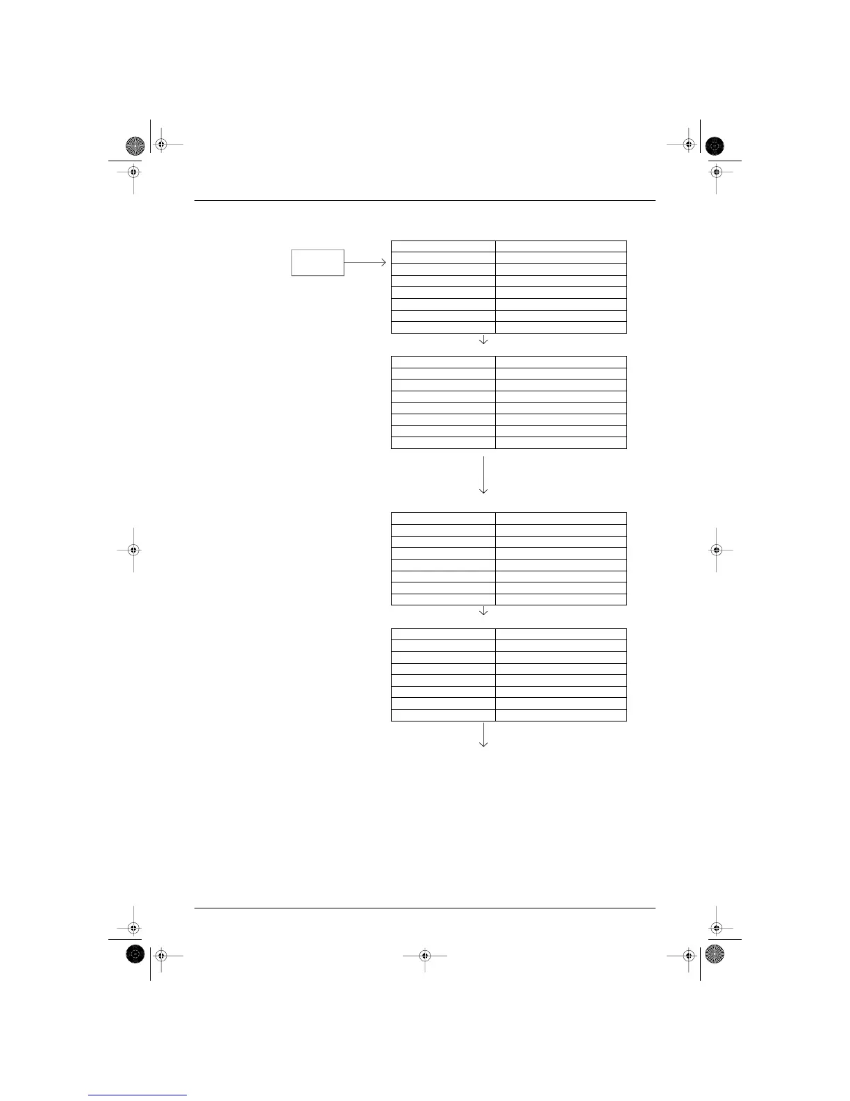
Operation Contents
Step 1 Discharge defrost k = kg/cm
2
Compressor 86Hz + OFF
EEV 2000pls
Outdoor Unit Fan OFF + OFF
Outdoor Unit Heat Exchanger Condenser
4 Way Valve OFF
Injection 1 Td Protection Control
Injection 2 OFF
Hot Gas ON
3 Minutes Elapsed
Step 2 Suction defrost
Compressor 86Hz + OFF
EEV 2000pls
Outdoor Unit Fan OFF + OFF
Outdoor Unit Heat Exchanger Condenser
4 Way Valve OFF
Injection 1 Td Protection Control
Injection 2 Td Protection Control
Hot Gas ON
Conclution of Defrost Completion
Condition
or
All of R2-1T, R2-2T 12.5ºC
Pc > 20.5k
10 Minutes Elapsed Since
Defrost Operation Start
Step 3 BS solenoid valve changeover
Compressor 38Hz + OFF
EEV 2000pls
Outdoor Unit Fan OFF + OFF
Outdoor Unit Heat Exchanger Condenser
4 Way Valve OFF
Injection 1 Td Protection Control
Injection 2 OFF
Hot Gas ON
40 Seconds Elapsed
Step 4 Refrigerant is discharged from accumulator
Compressor 76Hz + OFF
EEV Limit of EV Opening
Outdoor Unit Fan H + ON
Outdoor Unit Heat Exchanger Evaporator
4 Way Valve ON
Injection 1 Td Protection Control
Injection 2 OFF
Hot Gas Low Pressure Protection Control
or
5 Minutes Elapsed
Pc > 14k
R5T > Te + 10ºC
Normal Control
Pc = Condensing Pressure
Preparation
for Defrost
Upper Limit Frequency
Limited to 38Hz + ON
1 Minute
Elapses
(VF015)
SI-95.BOOK Page 22 Friday, March 31, 2000 10:59 AM

Table of Contents

Related product manuals