EasyManua.ls Logo

Daikin VRV K - 1.2 Outdoor Unit PC Board Ass’y

Daikin VRV K
170 pages
Print Icon
To Next Page IconTo Next Page
To Next Page IconTo Next Page
To Previous Page IconTo Previous Page
To Previous Page IconTo Previous Page
Loading...
Si-95 Functions
Functions Inverter K Series 33
1.18 Gas Depletion Alarm
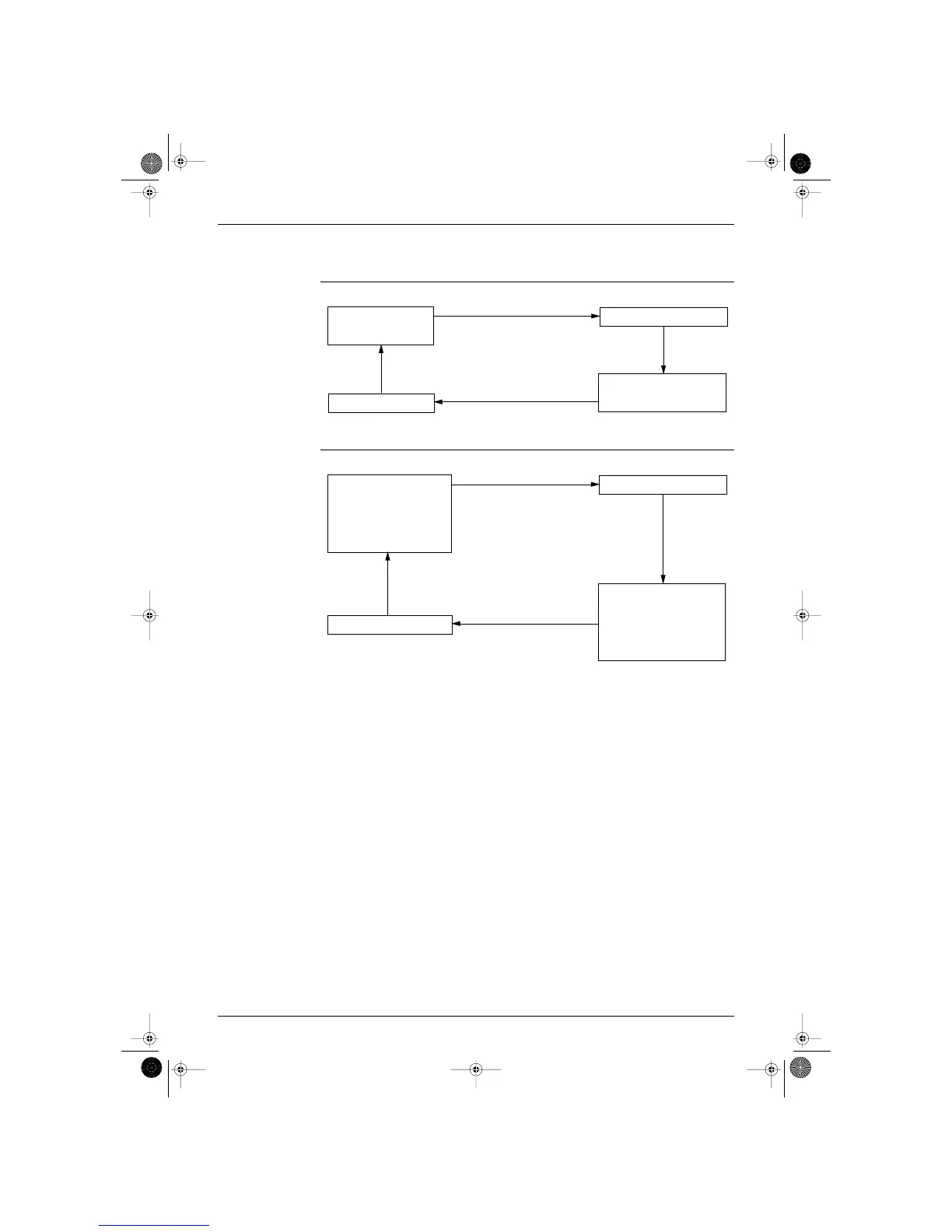
An alarm (U0) is given for severe gas depletion. Alarm is indicated but operation continues.
When cooling
When heating
While compressor is running
and
Low pressure < 1.0 kg/cm
²
Gas depletion alarm cancellation
Gas depletion alarm (U0) is displayed.
Compressor off
or
Low pressure Lp 1.0 kg/cm
²
Conditions given on the
left continue for 30 min.
(VF008)
While compressor is running
and
4-way valve ON (heating cycle)
and
Evaporator outlet superheat
temperature > 20˚C difference
and
Outdoor unit electronic expansion
valve = 2000 pulses (completely open)
Gas depletion alarm cancellation
Gas depletion alarm (U0) is displayed.
Conditions given on the
left continue for 60 min.
Compressor off
or
4-way valve OFF (cooling cycle / defrost)
or
Evaporator outlet superheat
temperature 20˚C difference
or
Outdoor unit electronic expansion
valve < 2000 pulses (Fully open)
(VF009)
SI-95.BOOK Page 33 Friday, March 31, 2000 10:59 AM

Table of Contents

Related product manuals