EasyManua.ls Logo

Danfoss VLT AQUA Drive FC 202 - Page 57

Danfoss VLT AQUA Drive FC 202
162 pages
Print Icon
To Next Page IconTo Next Page
To Next Page IconTo Next Page
To Previous Page IconTo Previous Page
To Previous Page IconTo Previous Page
Loading...
130BF361.10
0.0
66 (2.6)
123 (4.9)
181 (7.1)
243 (9.6)
269 (10.6)
297 (11.7)
325 (12.8)
351 (13.8)
40 (1.6)
0.0
1009 (39.7)
1034 (40.7)
1082 (42.6)
1202 (47.3)
1260 (49.6)
375 (14.8)
2
1
3
4
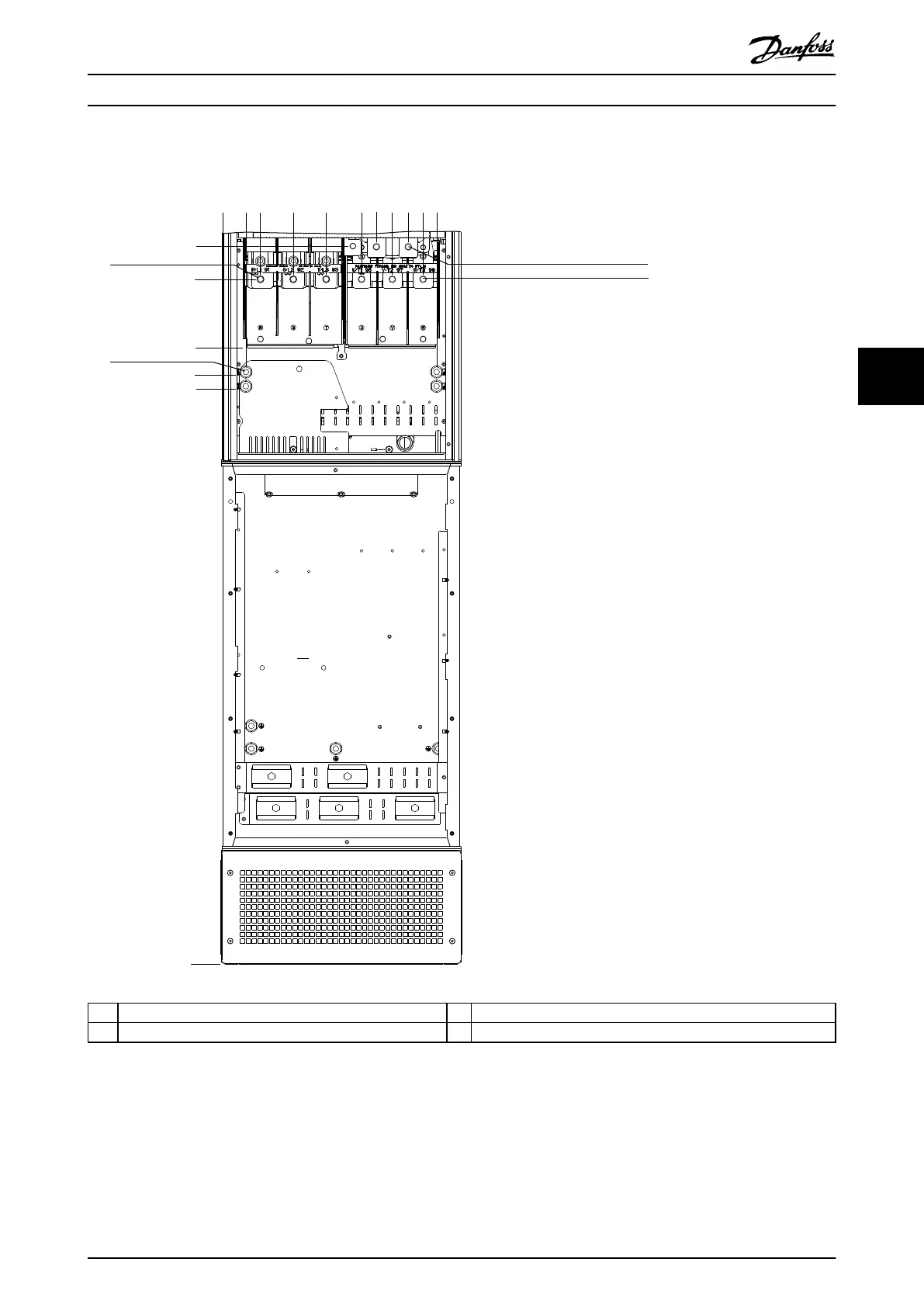
1 Mains terminals 3 Brake terminals
2 Ground terminals 4 Motor terminals
Illustration 5.27 D7h Terminal Dimensions with Brake Option (Front View)
Electrical Installation Operating Guide
MG21A502 Danfoss A/S © 09/2018 All rights reserved. 55
5 5

Table of Contents

Other manuals for Danfoss VLT AQUA Drive FC 202

Related product manuals