EasyManua.ls Logo

dunphy TD - Electronic Modulation Burners (M RT)

dunphy TD
165 pages
Print Icon
To Next Page IconTo Next Page
To Next Page IconTo Next Page
To Previous Page IconTo Previous Page
To Previous Page IconTo Previous Page
Loading...
Operating Instructions For TD/TAD4 Dual Fuel Burner
June 13 14 of 165 TD/TAD4 Manual Rev 4
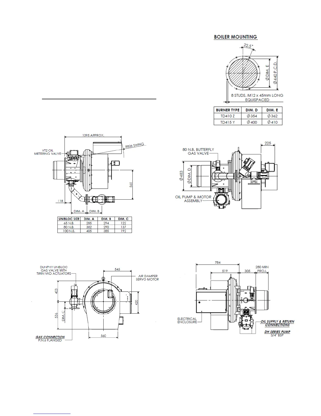
1.6.2 Electronic modulation burners (M RT)
Electronic modulation burners are fitted with on/off gas valves and
electronically controlled butterfly valves for the gas regulation. The
gas valve is generally a Unibloc (see component section for details)
however other valves can also be used depending on site details or
customer preference. An additional electronically controlled oil
metering valve is fitted for oil regulation see principle of
operation section for more details.
TD410 - 415 Burners with Unibloc Gas Valve

Table of Contents