EasyManua.ls Logo

ELNet LT - Page 20

ELNet LT
78 pages
Print Icon
To Next Page IconTo Next Page
To Next Page IconTo Next Page
To Previous Page IconTo Previous Page
To Previous Page IconTo Previous Page
Loading...
20
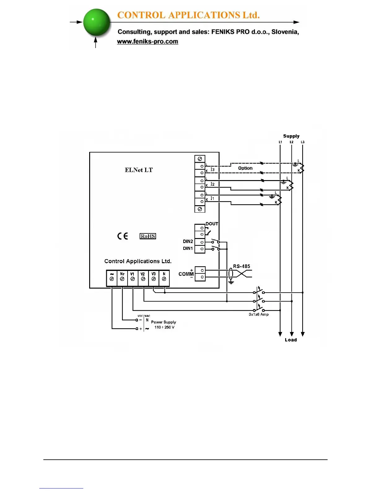
The current measurement wires are connected with screws
to build in standard connectors or optional 60 mm
connectors.
.
Figure 2.7 Schematic Wiring Diagram "Delta" connection

Table of Contents