EasyManua.ls Logo

Enviro C60I - Installation with Recess

Enviro C60I
55 pages
Print Icon
To Next Page IconTo Next Page
To Next Page IconTo Next Page
To Previous Page IconTo Previous Page
To Previous Page IconTo Previous Page
Loading...
25
7
8
22mm
5"
127mm
41
5
16
"
1068mm
44
15
16
"
1141mm
16
13
16
"
426mm
Minimum Clearance
to Heat Shield
Maximum Depth
Use Non-Combustible
Board Up to Recession
to Avoid Cracking
Finishing Edge
Minimum
Minimum
Recess
Height
7
8
17
"
"
72
"
[1830mm]
Initial Installation
QUALIFIED INSTALLERS ONLY
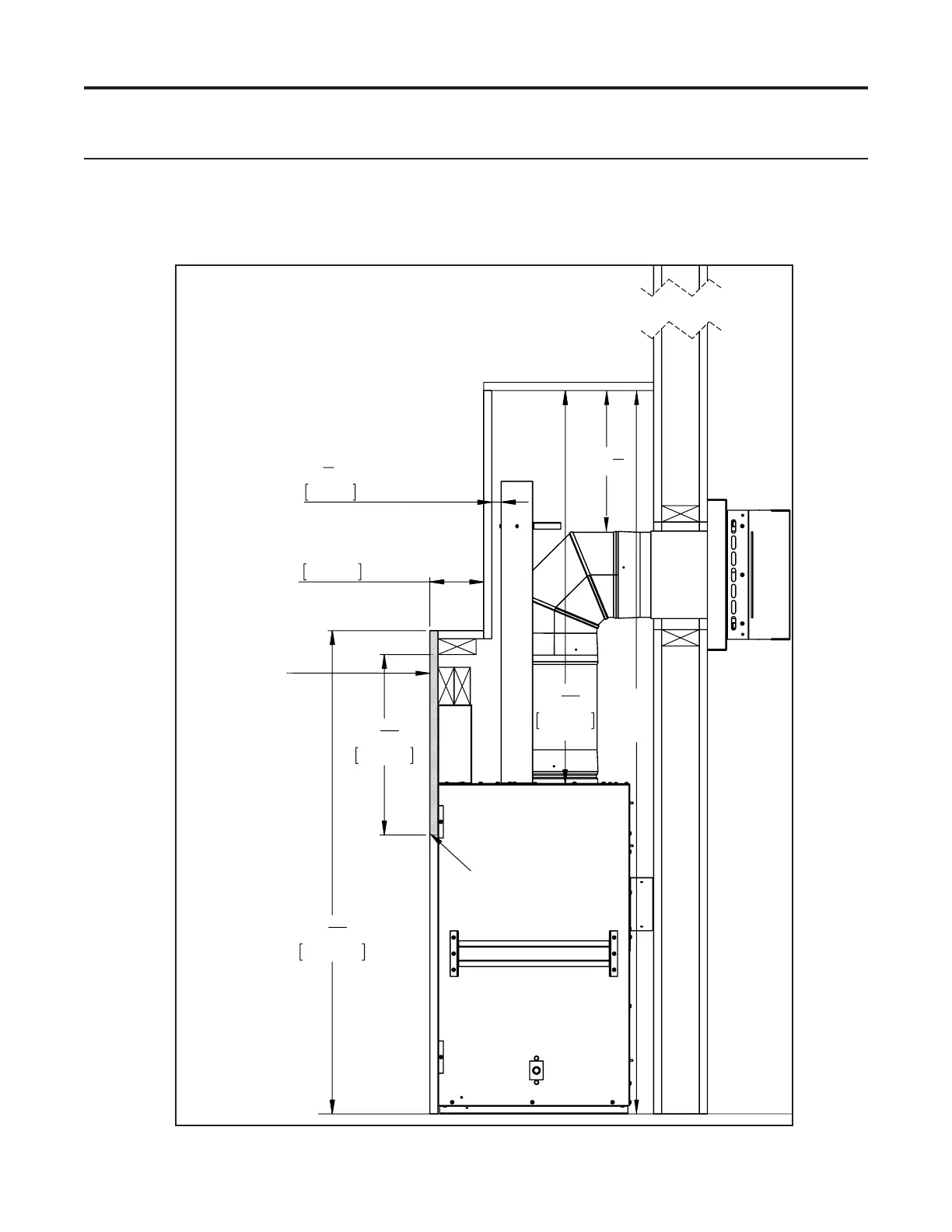
instaLLation with Recess
Refer to dimensions in Figure 31 if building a recess above the replace. Note the dimensions from the
nishing edge to the stud below the recess nishing material. The vertical nishing material at the back
of the recess must be be spaced 7/8” o the vent shield. Also note the dimension from the vent pipe to
the internal ceiling this must be maitainted if the replace is raised.
Figure 31: Install Dimensions with Recess

Related product manuals