EasyManua.ls Logo

Enviro C60I - Specifications; Dimensions; Rating Label & Lighting Instructions Location

Enviro C60I
55 pages
Print Icon
To Next Page IconTo Next Page
To Next Page IconTo Next Page
To Previous Page IconTo Previous Page
To Previous Page IconTo Previous Page
Loading...
6
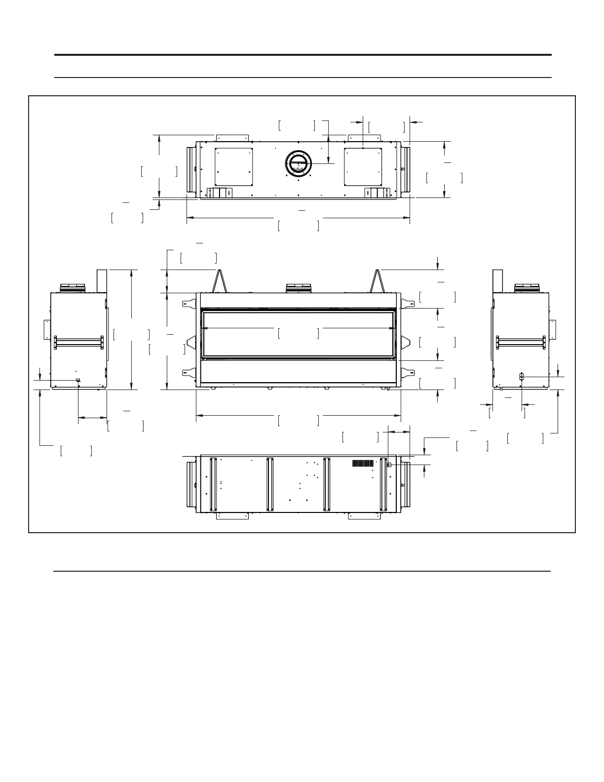
Specifications
Dimensions:
Rating LabeL & Lighting instRuctions Location:
Rotate the safety screen upward or remove the screen completely to access the rating label and lighting
instructions. The plates are attached to a length of chain and are never to be tampered with or removed.
All important information for your replace is on this label as well of the model specic serial number
which you will need for warranty information. The plates are located inside the cabinet on the left side
near the front.
7
1
4
"
186mm
30
3
4
"
779mm
62"
1575mm
65"
1651mm
9
1
4
"
235mm
16
1
2
"
422mm
12
1
4
"
308mm
4"
103mm
9
1
4
"
232mm
38"
965mm
3"
73mm
9
1
4
"
232mm
7"
176mm
3
1
4
"
81mm
Gas Inlet
Bottom
(Optional)
20"
507mm
1
2
"
13mm
70
3
4
"
1797mm
17
3
4
"
453mm
9"
231mm
15"
378mm
Electrical
Inlet Left
Side
Gas Inlet
Right Side
Figure 1. Unit Dimensions

Related product manuals