EasyManua.ls Logo

Enviro C60I - Clearances & Non-Combustible

Enviro C60I
55 pages
Print Icon
To Next Page IconTo Next Page
To Next Page IconTo Next Page
To Previous Page IconTo Previous Page
To Previous Page IconTo Previous Page
Loading...
29
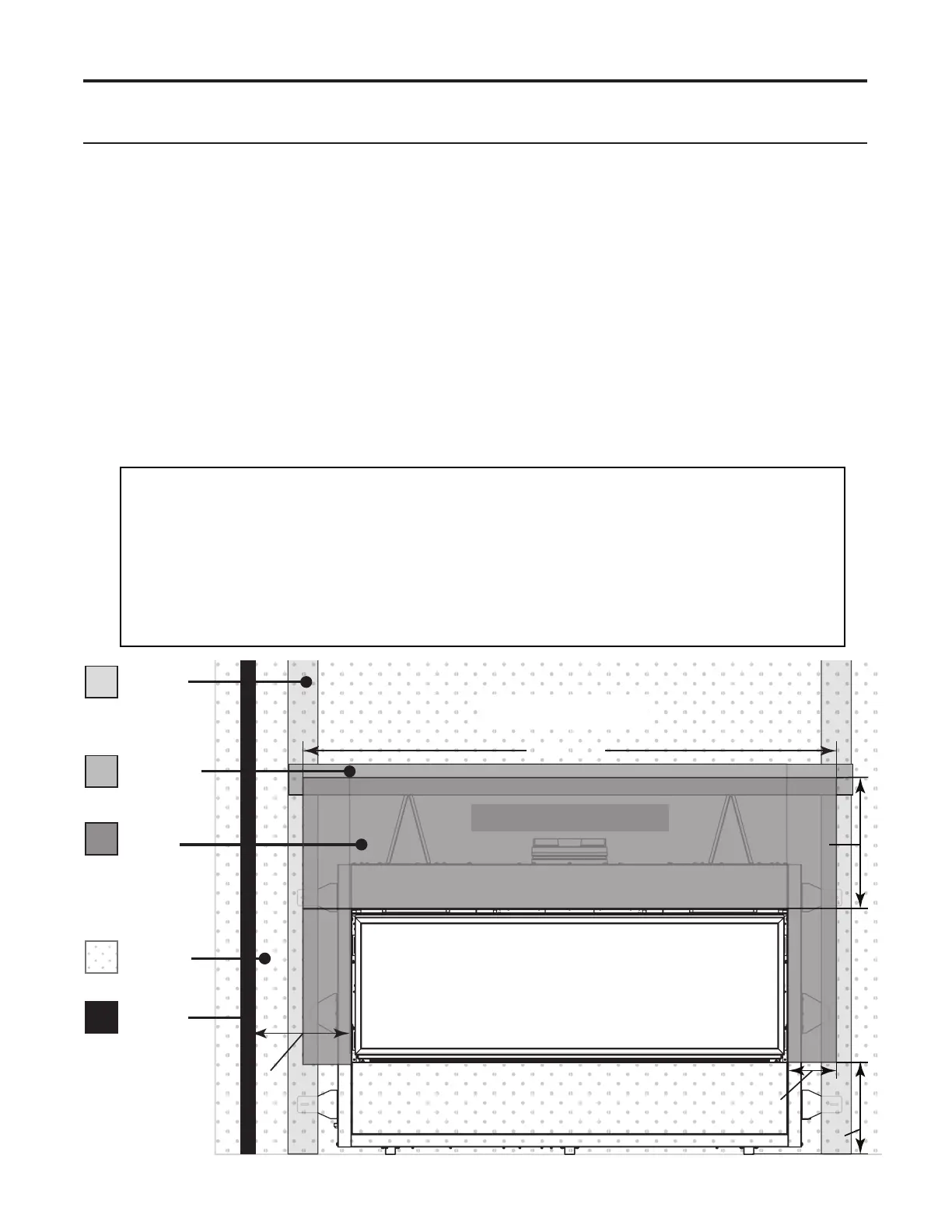
Figure 36. Finishing Non-Combustible Zone
cLeaRances & non-combustibLe :
When installing the C60I as a zero clearance replace the correct clearances and materials must be used:
aboVe unit: A minimum 13 3/4” (350mm) of non-combustible facing material must be used above the
rebox opening.
in FRont oF unit: The C60I can be placed on a combustible oor if desired. The unit cannot sit directly
on combustible ooring other than wood.
aDjacent/siDewaLL: A minimum of 5 3/16” (132mm) of non-combustible facing materials must be used
of the side of the rebox opening above the bottom edge openeing. There must be a minimum distance of
7” (229mm) from the nishing edge of the C60I to an adjacent wall composed of combustible material.
mantLe: It is not necessary to install a mantle, but if one is desired the guidelines as shown in Figure
30(a,b). The minimum clearance from the side of a mantle to wall is 4”.
FLooR: There must be a minimum distance of 10” (254mm) from the bottom nishing edge of the C60I
to a oor composed of combustible material.
Initial Installation
QUALIFIED INSTALLERS ONLY
56 1/2”
13 3/4”
10”
COMBUSTIBLE
NON COMBUSTIBLE
Framing
MetalStud
Drywall
Concrete
Board
Sidewall
7”
5 3/16
72
cRacking: The most common area of cracking is along the horizontal cement board/drywall
transition; placing this transition further away from the heat will help prevent cracks. If you
have concerns of excessive nishing wall temperature follow one of these options to mini-
mize the possibility of cracking:
1. Install the optional heat distribution kit (50-3213).
2. Install concrete board higher than the minimum specied dimension.
3. Add a decorative tile trim over the drywall transition area.

Related product manuals