EasyManua.ls Logo

Escea DS1400 - E6 Removing Infill and Burners; E7 Gas Type Conversion

Escea DS1400
59 pages
Print Icon
To Next Page IconTo Next Page
To Next Page IconTo Next Page
To Previous Page IconTo Previous Page
To Previous Page IconTo Previous Page
Loading...
B
A C D E F G SERVICE
32
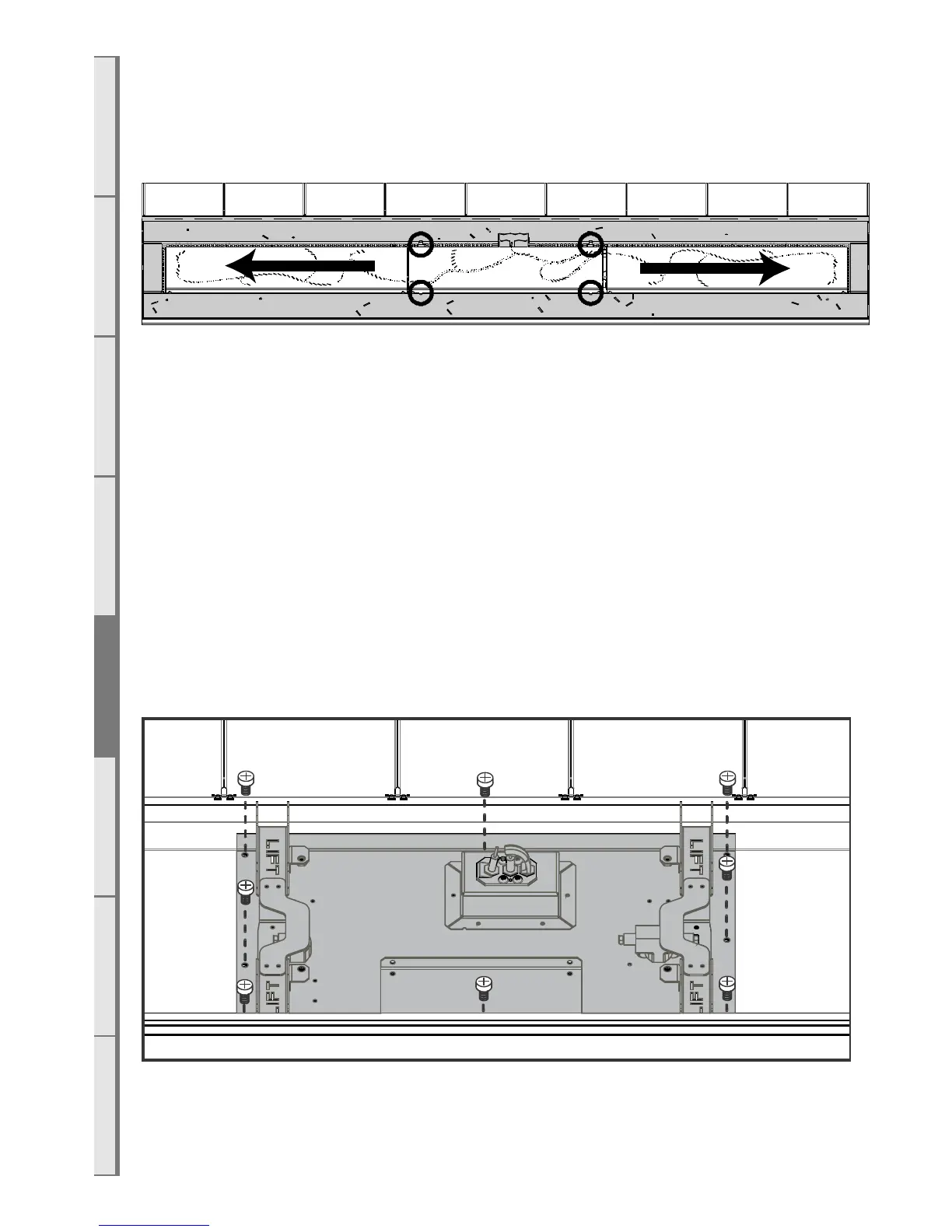
E6 Remove the Infill & Burners
Remove the four screws shown in the diagram below. Lift one end up of the infill into the top corner of
the firebox and then out towards you, taking care not to scratch the firebox paint and reflective panels.
Remove the outer burners first by sliding them away from the centre of the fireplace, followed by the
centre burner.
NOTE: After any conversion AIRFLOW MUST NEVER be coming up the glass from the bottom,
ALWAYS EXITING FROM the top of the glass.
E7 Gas Type Conversion
THIS APPLIANCE IS CONFIGURED TO OPERATE ON NG.
If gas type conversion is not required then skip to the next section.
Your gas fire has been supplied with the necessary parts for gas conversion. Follow the steps on the
following page to change from NG to ULPG/Propane or vice versa.
WARNING: The regulator that is supplied with the fire MUST NOT BE REMOVED.
Removal of the regulator, or replacing it with one not intended for use with this Escea fire, will void the
limited appliance warranty.
Turn o power and gas first.
Step 1: Remove the 8 screws on the controls tray (shown shaded in the diagram below).
Remove ‘engine’ by lifting up and to the right. This is still connected internally to the gas hose and
power cables.
Step 2: Change the three main burner jets with the jets supplied in kitset (see table on next page).

Table of Contents

Related product manuals