EasyManua.ls Logo

EVS XT2 - Jumpers on the COHX Base Module

EVS XT2
66 pages
Print Icon
To Next Page IconTo Next Page
To Next Page IconTo Next Page
To Previous Page IconTo Previous Page
To Previous Page IconTo Previous Page
Loading...
XT Series DISK RECORDER - Version 9.00 - Hardware Technical Reference Manual
EVS Broadcast Equipment SA – April 2008
Issue 5.00
39
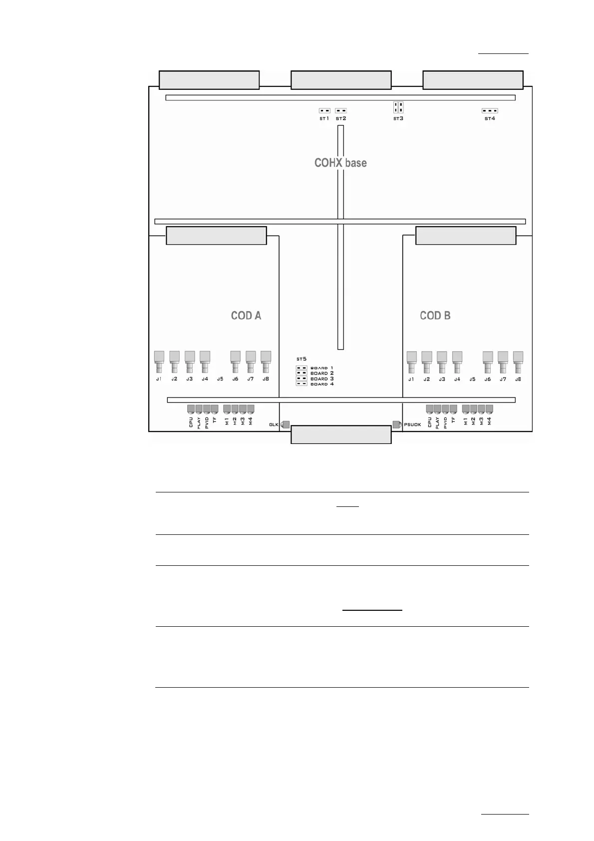
3.2.1.1 JUMPERS ON THE COHX BASE MODULE
ST1, ST2: These 2 jumpers must be installed on the last COHX
board of the server (i.e. on COHX #1, 2 or 3 if there are
respectively 1, 2 or 3 COHX board installed in the server)
ST3 (SPARE): « parking » for jumpers for ST1 and ST2 when these are
not used
ST4 (only on
COHX with
genlock) :
It must be set to HiZ (or not installed).
Note that the Genlock Loop connector on the back panel
of the XT[2] server must always
be terminated with a 75
Ohm load if it is not used.
ST5 : It defines the position of the board inside the server.
It must be set to « 1 » for a COHX with genlock, and to
« 2 » or « 3 » for a COHX board without genlock,
depending on its position in the server.

Table of Contents

Related product manuals