EasyManua.ls Logo

Festo MPAL-VI - Creation of Pressure Zones

Festo MPAL-VI
121 pages
Print Icon
To Next Page IconTo Next Page
To Next Page IconTo Next Page
To Previous Page IconTo Previous Page
To Previous Page IconTo Previous Page
Loading...
2 Product overview
40 Festo – MPAL-VI-EN – 2017-07a – English
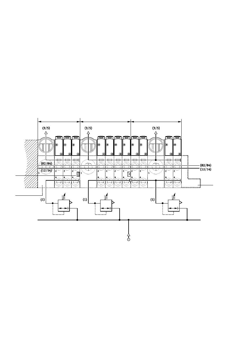
2.8.6 Creation of pressure zones
To supply valves with different operating pressures, pressure zones can be created in the valve termin
al. A total of up to 20 pressure zones can be created.
To operate vacuum- or low-pressure-compatible valves with other valves, pressure zones are essential
èChap. 2.8.3.
Sub-bases with pressure zone separation divide the supply duct (1) and/or the exhaust air ducts (3)
and (5) èChap.2.4.5).
A pressure zone starts to the right of the sub-base with pressure zone separation and requires its own
pressure supply. Compressed air can be supplied and exhausted via a supply module or the right end
plate. Additional supplies can be installed at any desired position within a pressure zone è Fig. 2.25
and Fig. 2.26.
12 3
4
5
6
1 Pressure zone 1
2 Pressure zone 2
3 Pressure zone 3
4 Right end plate (here: version without
lateral ports)
5 Supply module (here: for pressure zone 1)
6 Designation of sub-base with pressure zone
separation (here: duct (1) and duct (3/5)
separated between pressure zones 1 and 2)
Fig. 2.25 Valve terminal with 3 pressure zones - example

Table of Contents

Other manuals for Festo MPAL-VI

Related product manuals