EasyManua.ls Logo

Fronius Selectiva 4.0 - Page 19

Fronius Selectiva 4.0
72 pages
Print Icon
To Next Page IconTo Next Page
To Next Page IconTo Next Page
To Previous Page IconTo Previous Page
To Previous Page IconTo Previous Page
Loading...
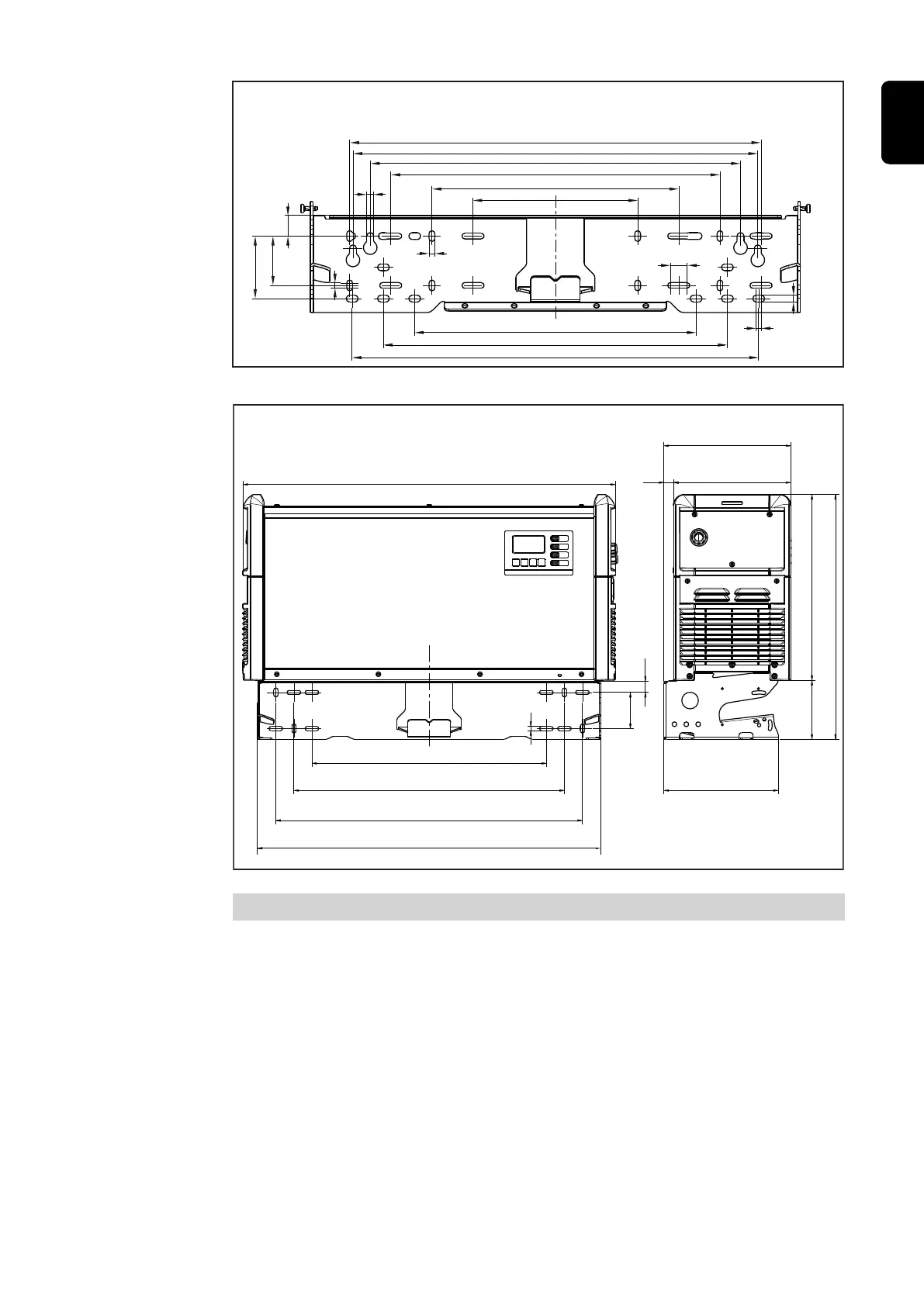
342 (13.46)
418 (16.46)
494 (19.45)
500 (19.69)
492 (19.37)
450 (17.72)
400 (15.75)
300 (11.81)
200 (7.87)
20 (.79)
8.3
(.79)
6
(.24)
7 (.28)
8.5
(.33)
6
(.24)
25
(.98)
76 (2.99)
60
(2.36)
mm (in.)
8 kW / 16 kW
Hole pattern
18 kW
392 (15.43)
516 (20.31)
mm (in.)
785 (30.91)
500 (19.69)
570 (22.44)
241 (9.49)
646 (25.43)
723 (28.46)
267 (10.51)
247 (9.72
(.79)
20
76
(2.99)
9
(.35)
24
(.94)
124
(4.88)
Weight of the wall bracket:
8 kW 1.80 kg (3.97 lb)
16 kW 3.15 kg (6.49 lb)
18 kW 4.30 kg (9.48 lb)
19
EN-US

Table of Contents

Related product manuals