EasyManua.ls Logo

Frymaster FMCFE - MJCFE 24 V Wiring Diagram

Frymaster FMCFE
88 pages
Print Icon
To Next Page IconTo Next Page
To Next Page IconTo Next Page
To Previous Page IconTo Previous Page
To Previous Page IconTo Previous Page
Loading...
MASTER JET CF SERIES ATMOSPHERIC GAS FRYERS
CHAPTER 1: SERVICE PROCEDURES
1-37
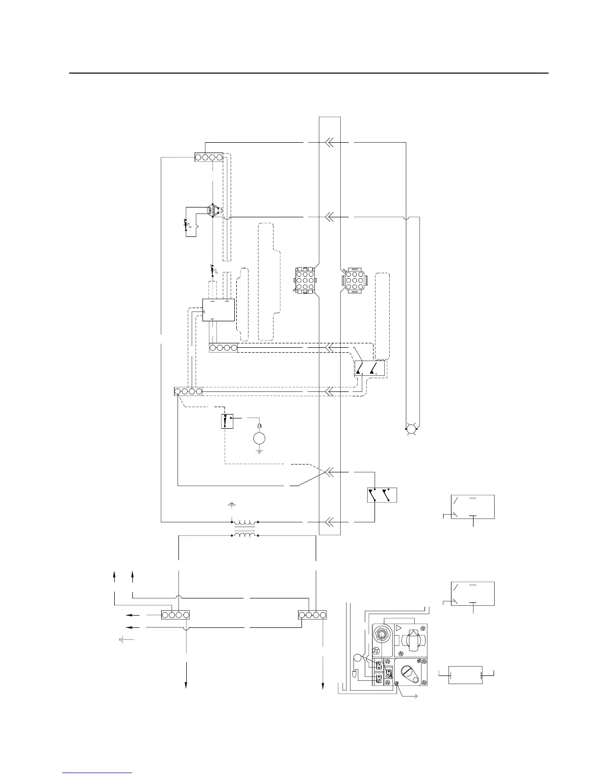
1.12.3 MJCFE 24V Wiring Diagram
24 VAC
7P
or
240 VAC
6C
C
2
1
6P
1/2 P.S .I.
HONEYWELL
ON
PILOT
HONEYWELL
1/2 P.S.I.
11C
ADJ.
PILOT
5P
4P
OFF
22C
12C
5
8
7
6
24C
27C
1P
2P
2
1
1P
1
1C
2P
2
2C
4
4P
4C
2C
20C
120 VAC
22C
1C
4
27C
1
3
2
23C
N H
25C
26C
10C
C
12C
NC
NO
16
14
15
13
8051202D
5C
5P
5
7
4
1
9
8
6
3
5
2
4
7
6
9
5
8
6
1
3
2
7C
7P
6P
6C
7
VALVE
GND
17
19
20
18
14C
MELT13C
24V
9C
50C
1111C
12
10
9
PLAN WIRING DIAGRAM: 120V/24V, 60HZ., 1Ø, 3 WIRE SERVICE
240V/24V, 50HZ., 1Ø, 3 WIRE SERVICE
TO NEXT FRYER PIN 2
TO NEXT FRYER PIN 6
120V OR 240V
INPUT
TO PIN 1 OF THE FILTER 16 PIN
TERMINAL BLOCK
POWER
TO PIN 13 OF THE FILTER
16 PIN TERMINAL BLOCK
NEUTRAL
HIGH-LIMIT THERMOSTAT
GAS VALVE
OPERATING THERMOSTAT
ON/OFF SWITCH
HEATIN G LIGHT
ON/OFF SWITCHMELT CYCLE SWITCH
HEATING LIGHT
PILOT GENERATOR
MELT CYCLE SWITCH
MELT CYCLE SWITCH
DISCO NNECT PLUG
SOUND DEVICE
SAFETY DRAIN OPTION
CAPACITOR
HONEYWELL 1/ 2 PSI
OPERA TING THERM OSTAT
GAS VALVE
CAPACITOR
HIGH-LIMIT THERMOSTAT
PILOT GENERATOR
SCREENED AREA FOR MELT CYCLE OPTION

Table of Contents

Related product manuals