EasyManua.ls Logo

Frymaster FMCFE - Filter Magic II Wiring Diagram

Frymaster FMCFE
88 pages
Print Icon
To Next Page IconTo Next Page
To Next Page IconTo Next Page
To Previous Page IconTo Previous Page
To Previous Page IconTo Previous Page
Loading...
MASTER JET CF SERIES ATMOSPHERIC GAS FRYERS
CHAPTER 1: SERVICE PROCEDURES
1-40
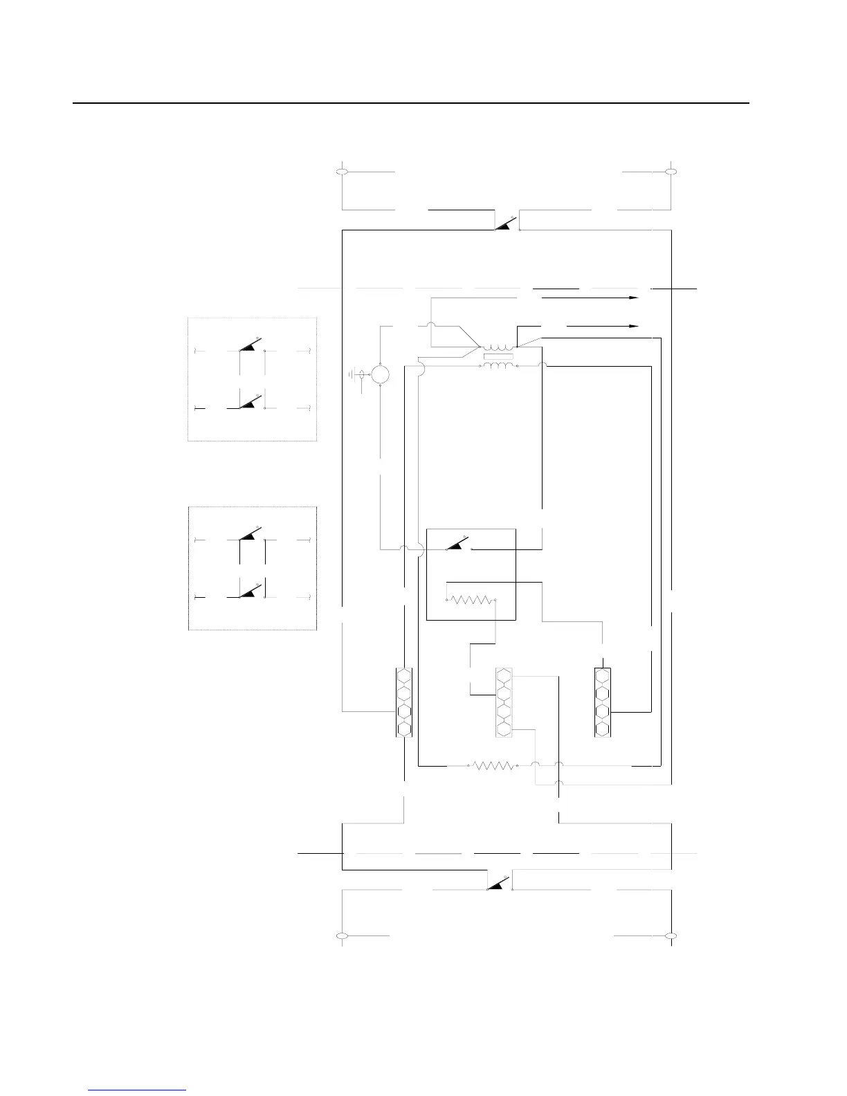
1.12.6 Filter Magic II Wiring Diagram
FOR (DIRECT) UNITS
100V
200V
OR
220V
120V
208V
35C
12
32C
HEATER
PUMP
8
7C
9
10
28C
31C
5
6
3
711
33C
4
23C
8050385D
1
2
121C
22C
NO
88C
35C
3
C
87C
33C
INSET B-B
REPEAT SAME CIRCUIT ON NEXT FRYER IF NEEDED
FILTER PUMP MOTOR
27C
1 ST. FRYER - LEFT OF FILTER
ON/OFF SWITCH
PUMP
RELAY
SEE INSET B-B
FOR 50-2
24C
24V
240V
1C
230V
12C
TO FRYER POWER SUPPLY
35C
2
43C
32C
NO
NO
M
14C
88C
35C
NO
36C
31C
C
23C
C
87C
C
33C
22C
INSET A-A
33C
FILTER PUMP MOTOR
REPEAT SAME CIRCUIT ON NEXT FRYER IF NEEDED
4
ON/OFF SWITCH
1 ST. FRYER - RIGHT OF FILTER
FOR 50-2
SEE INSET A-A
( DIRECT )
P
L
A
N
W
I
R
I
N
G
D
I
A
G
R
A
M
F
O
R
F
I
L
T
E
R
M
A
G
I
C
I
I

Table of Contents

Related product manuals