EasyManua.ls Logo

GE Multilin 850 - Page 373

GE Multilin 850
616 pages
Print Icon
To Next Page IconTo Next Page
To Next Page IconTo Next Page
To Previous Page IconTo Previous Page
To Previous Page IconTo Previous Page
Loading...
CHAPTER 4: SETPOINTS PROTECTION
850 FEEDER PROTECTION SYSTEM – INSTRUCTION MANUAL 4–241
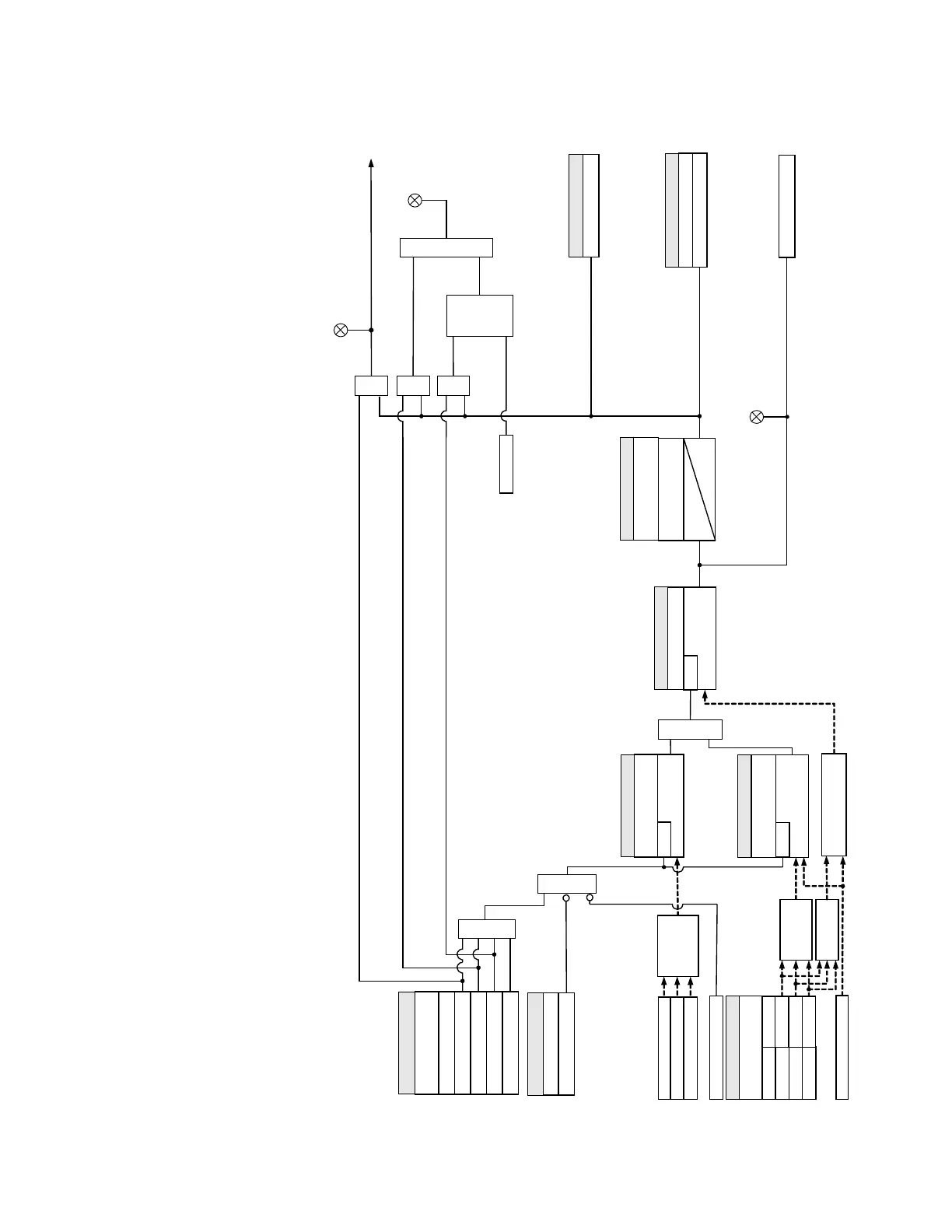
Figure 4-101: Underfrequency Protection logic diagram
LED: PICKUP
Current Inputs
Phase A Current (IA)
Phase B Current (IB)
Phase C Current (IC)
SETPOINTS
BLOCK :
Off=0
AND
SETPOINTS
UNDERFREQ 1
FUNCTION :
Disabled
Trip
Alarm
Latched Alarm
Configurable
OR
None
Positive -
sequence
SETPOINTS
UNDERFREQ 1
MINIMUM CURRENT :
I = MINIMUM
SETPOINTS
UNDERFREQ 1
MINIMUM VOLTAGE :
AND
SETPOINTS
UNDERFREQ 1 PICKUP :
0 < f = PICKUP
FREQUENCY f
RUN
SETPOINTS
UNDERFREQ 1
PICKUP DELAY :
t
PKP
t
DPO
UNDERFREQ 1
DROPOUT DELAY :
Underfreq 1 OP
FlexLogic Operands
Underfreq 1 PKP
AND AND AND
Command
RESET
OR
LED: ALARM
LED: TRIP
Operate Output Relay 1 (TRIP)
WYE DELTA
VA
VAB
VB VBC
VC VCA
Vx
RUN
V = MINIMUM
RUN
SETPOINTS
OUTPUT RELAY 3 (X)
Do Not Operate , Operate
S
LATCH
Set-
Dominant
R
SETPOINTS
UNDERFREQ 1
SIGNAL INPUT
:
Positive-
sequence
Composite
Voltage Inputs
892737A3.cdr

Table of Contents

Related product manuals