EasyManua.ls Logo

GE Multilin 850 - Page 60

GE Multilin 850
616 pages
Print Icon
To Next Page IconTo Next Page
To Next Page IconTo Next Page
To Previous Page IconTo Previous Page
To Previous Page IconTo Previous Page
Loading...
2–12 850 FEEDER PROTECTION SYSTEM – INSTRUCTION MANUAL
ELECTRICAL INSTALLATION CHAPTER 2: INSTALLATION
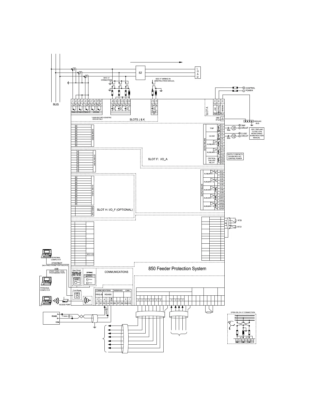
Figure 2-14: Typical wiring diagram – Draw-out unit
PHASE CTs
DIRECTION OF POWER FLOW FOR POSITIVE WATTS
POSITIVE DIRECTION OF LAGGING VARS
+24 V
F21
INSTRUCTION MANUAL
INPUT WIRING IN
SEE GROUND
VOLTAGE INPUTS
CURRENT INPUTS
COMMON
DIGITAL INPUT 7
DIGITAL INPUT 6
DIGITAL INPUT 5
DIGITAL INPUT 4
DIGITAL INPUT 3
DIGITAL INPUT 2
DIGITAL INPUT 1
F20
F19
F18
F17
F16
F15
F14
F13
+24 V
G/H21
COMMON
DIGITAL INPUT 7
DIGITAL INPUT 6
DIGITAL INPUT 5
DIGITAL INPUT 4
DIGITAL INPUT 3
DIGITAL INPUT 2
DIGITAL INPUT 1
G/H20
G/H19
G/H18
G/H17
G/H16
G/H15
G/H14
G/H13
SLOT G OR H: I/O_A* (OPTIONAL)
G1 G2 G3 G4 G5 G6 G7 G8 G9 G10 G1
1
G12 G13 G14 G15 G16 G17 G18 G19 G20 G21 G22 G23 G24
DCmA I/O
ANALOG OUTPUT
ANALOG INPUT
RTD
112
34567
11
23 4
SHIELD
SHIELD
SHIELD
RETURN
HOT
COMP
RESER VED
RESER
VED
RETURN
RETURN
ANY MEASURED
OR METERED
ANALOG PARAMETER
OUTPUTS
AMBIENT
TEMPERATURE
RESER VED
RESER VED
RESER VED
H9
DIGITAL INPUT 7
DIGITAL INPUT 6
DIGITAL INPUT 5
DIGITAL INPUT 4
DIGITAL INPUT 3
DIGITAL INPUT 2
DIGITAL INPUT 1
H8
H7
H6
H5
H4
H3
H2
H1
+24 V
H12
COMMON
DIGITAL INPUT 10
H11
H10
DIGITAL INPUT 9
DIGITAL INPUT 8
SLOT G: I/O_L (OPTIONAL)
CH1
CH4
CH3
CH2
FIBER INPUT 1
FIBER INPUT 2
FIBER INPUT 3
FIBER INPUT 4
C9
C8
C7
C6
C5
C4
C3
C2
C1
C12
C11
C10
C15
C14
C13
C18
C17
C16
SHIELD
RETURN
COMP
HOT
COMP
HOT
RETURN
COMP
HOT
HOT
RESERVED
SHIELD
COMP
RETURN
COMP
HOT
COMP
HOT
RTD 7
RTD 7/8
RTD 8
RTD 9
RTD 10
RTD 11
RTD 12
RTD 9/10
B9
B8
B7
B6
B5
B4
B3
B2
B1
B12
B11
B10
B15
B14
B13
B18
B17
B16
SHIELD
RETURN
COMP
HOT
COMP
HOT
RETURN
COMP
HOT
HOT
RESERVED
SHIELD
COMP
RETURN
COMP
HOT
COMP
HOT
RTD 1
RTD 1/2
RTD 2
RTD 3
RTD 4
RTD 5
RTD 6
RTD 3/4
RTD 5/6
SLOT B OR C: I/O_R OR I/O_S* (OPTIONAL)
* SUPPORTS 10 OHM COPPER RTD AS WELL
* SLOT H I/O_A IS AVAILABLE WHEN SLOT G IS WITH I/O_L
ANY MEASURED OR
METERED ANALOG PARAMETER
INPUTS
CABLE SHIELD TO BE GROUNDED
AT PLC/COMPUTER END ONLY
A2
A2
A2
A2
A2
A2
A2
SLOT D
SLOT E
892768A3

Table of Contents

Related product manuals