EasyManua.ls Logo

GW Instek PEL-3021 - Pel-3211

GW Instek PEL-3021
257 pages
Print Icon
To Next Page IconTo Next Page
To Next Page IconTo Next Page
To Previous Page IconTo Previous Page
To Previous Page IconTo Previous Page
Loading...
PEL-3000(H) User Manual
250
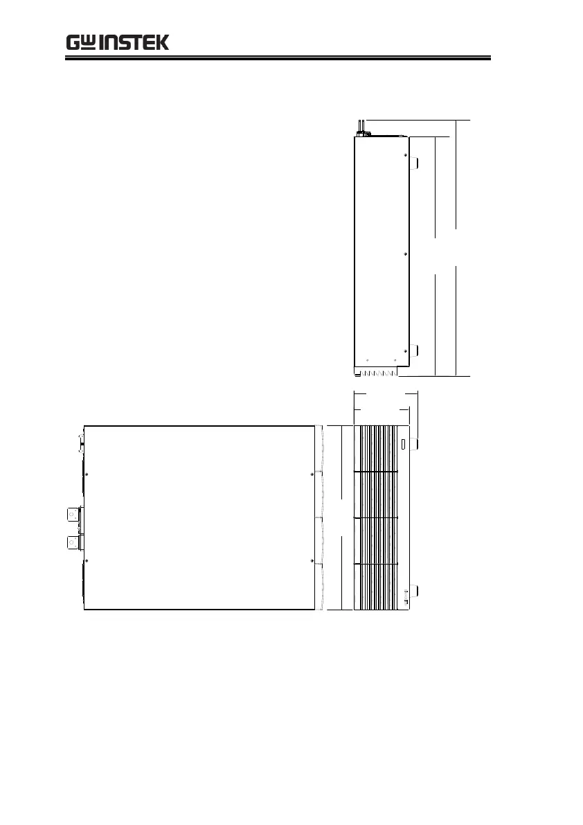
PEL-3211
P EL - 3 2 1 1
DC Electronic Load
0 - 420A / 1.5 - 150V , 2100W
LINK STBY
427.7
5.0
5.8
553.5
592.5
127.8
147.8

Table of Contents

Other manuals for GW Instek PEL-3021

Related product manuals